Oktober/November 2020 - das „Wulffsche Epitaph“


Februar/Mai 2020 - Innenraum-Wiedereinzug


Herbst 2019 - Innenraum




Januar 2019, der Verein berichtet




Herbst 2018 - Turm und Südarm



Sommer 2018 - die Baumaßnahmen im Inneren der Kirche gehen weiter

Pfingsten 2018 - neues "Ambiente"

Mai 2018 - Malerarbeiten






Frühjahr 2017 - Über und um der(ie) St. Bartholomäuskirche





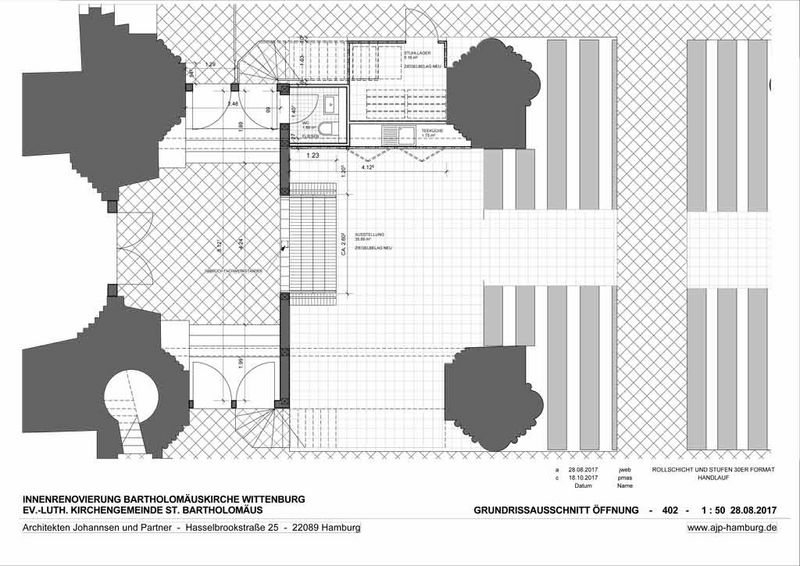
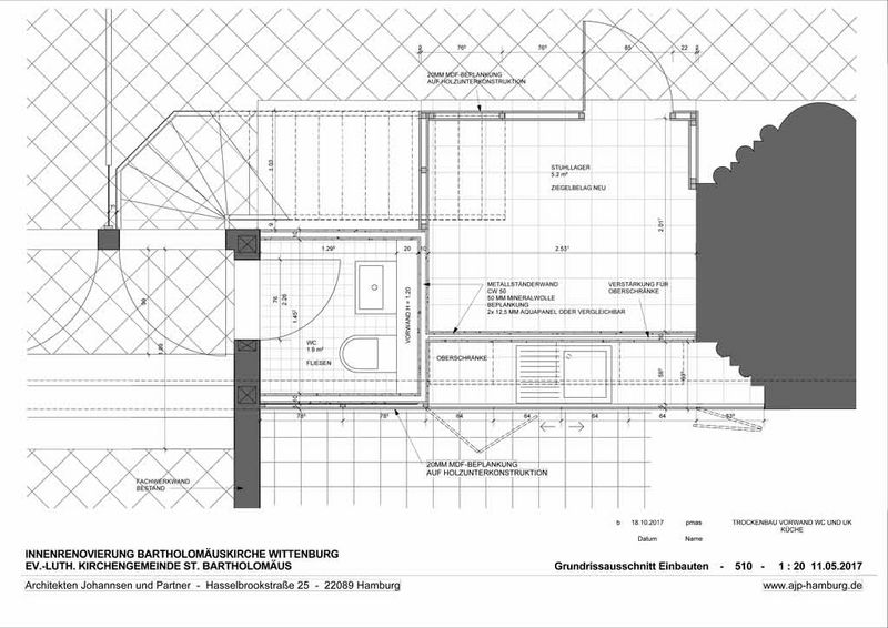
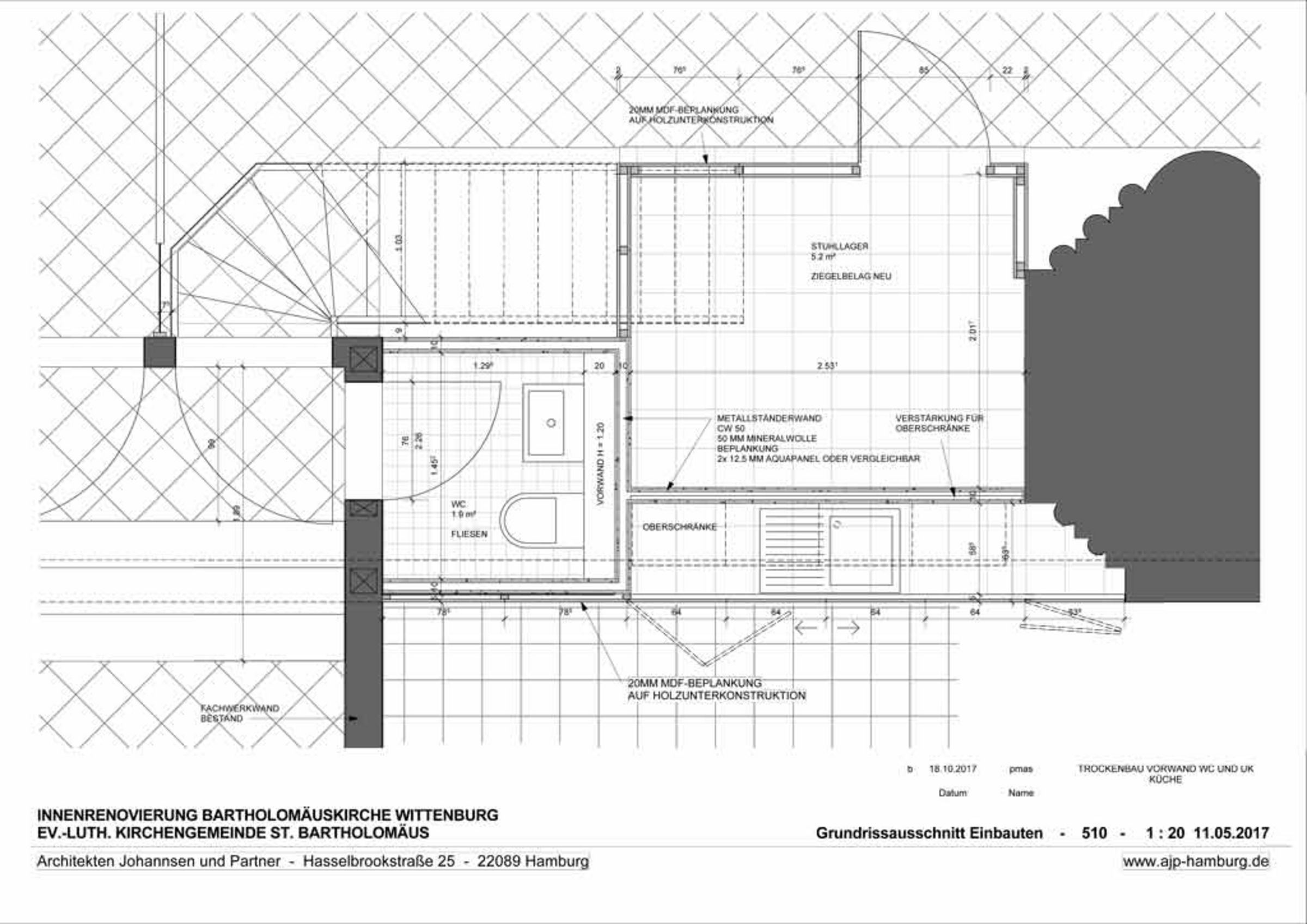
Winter / Frühjahrsarbeiten 2017 - An und in der St. Bartholomäuskirche




Juni 2016 - Informationsbesuch zu unserer Kirchenrestaurierung


































































































































































