Pfarrscheune - Bautagebuch

Die 2020 eröffnete Pfarrscheune dient den Kirchengemeinden Lichtenhagen Dorf und Lütten Klein als Begegnungszentrum. Darüber hinaus besteht ein Kooperationsvertrag mit der Kommune. Ebenso können die ortsansässigen Vereine die Räume für ihre Zwecke nutzen und natürlich können auch private Feiern stattfinden.
Nutzungsbedingungen
Scheune fertig Fotos - 13.9.2020
Die Bauarbeiten an der Scheune sind abgeschlossen. Die Gewerke und Ehrenamtlichen kamen zu Danke-Treffen zusammen. Die Eröffnungfeier fand am 13. September 2020 bei strahlendem Wetter und vielen, vielen Gästen statt.
Die Bilder zeigen die Scheune von außen und verschiedene Räume. Nach und nach wird die Fotoserie erweitert.
Dank an Ehrenamtliche beim Scheunenumbau - 19.6.2020
Es gab einen weiteren Danke-Abend für die Ehrenamtlichen beim Scheunenbau. Eingeladen waren die Mitglieder der Kirchengemeinderäte von Lütten Klein und Lichtenhagen Dorf, alle Scheunenausschüsse, das SommerCafé-Team und die Männergruppe. Obwohl das Wetter sehr nach Regen aussah, blieben wir wunderbarer Weise weithin verschont.
Pastorin Kieseler eröffnete mit einem Dank an Architekt Sebastian Graewe, der schon bem Gewerke-Dank eine schöne Erinnerung bekam. Er wiederum dankte für die sehr gute Zusammenarbeit, besonders allen, die in den Ausschüssen viele Details am Bau mitbedacht haben.Ein besonderer Dank ging an den Leiter des Scheunenausschusses der Kirchengemeinde, Friedrich Heilmann. Er war nicht nur "Bauherrenvertreter", sondern auch Protokollschreiber und Webmaster des Bautagebuchs im Internet. Dem Vorstand des Fördervereins, der die gesamten Spenden für die Scheune entgegennahm (bisher 80.000 Euro) wurden ebensfalls Dank-Urkunden überreicht. Dr. Frank Mohr, Findlingsgarten e.V., überbrachte die Info-Tafel für den besonderen Stein am Eingang der Scheune. Ebenso wurde allen KGR-Mitgliedern, den vier Ausschüssen (siehe Urkunde), dem Team vom SommerCafé, der Männergruppe und dem Bauhof unserer Kommune gedankt. Der KGR ließ es sich nicht nehmen, auch Pastorin Kieseler für ihre über das normale Maß weit hinausgehende Arbeit herzlich zu danken. Sie sorgte auch immer für gute Stimmung, behielt den Überblick und so sind wir am Ziel unseres langen Bauprozesses angekommen.
Im Foyer der Scheune gibt es eine kleine Ausstellung mit Fundsachen und Materialien beim Umbau.
Dank an Scheunenumbau-Gewerke - 12.6.2020
Wir können z.Zt. keine große Eröffnung der Scheune feiern. Daher luden wir in kleinerem Kreis die Gewerke ein, die fertige Scheune zu besichtigen. Architekt Sebastian Graewe dankten wir für seinen langen und geduldigen Einsatz (2015-20) mit einem besonderen Stein aus der Scheune, der von Steinmetz Albrecht künstlerisch gestaltet wurde. Danach ging es zum festlichen Essen in die "Gute Laune", da eine eigene Bewirtung im Pfarrgarten noch nicht erlaubt ist.
Plakat Fördermittel, Kirchenbank - 10.6.2020
Als Dank für alle Fördermittelgeber wird bald ein Plakat im Foyer der Scheune - auch durch die große Glasscheibe von außen sichtbar - zu sehen sein.
Beim Ausräumen der Scheune war auch eine relativ gut erhaltene Kirchenbank dabei, die zuerst eingelagert, jetzt restauriert ihren Platz im Saal der Scheune hat.
Graben, Pflasterarbeiten, Schacht - 3.6.2020
Die Arbeiten in der Scheune sind so gut wie beendet. Übrig bleibt das Feinjustieren der Lichtsteuerung. Nun geht es ans Abrechnen der Fördergelder und Corona-bedingt langsames Inbetriebnehmen.
Draußen leistet die Männergruppe Großes. Die Erdkabel wurden verlegt, um später eine Ladestation aufzubauen. Der schöne Feldstein, nun gereinigt, s.u., wurde wieder eingepflastert. Beim Wasserschacht entstand - sehr schön anzusehen - der obere Ring neu, beides durch Herrn Stangenberg. Herzlichen Dank.
Steinreiniger - 28.5.2020
Die Pfarrscheune und drumherum ist reich an Findlingen und Feldsteinen. Ein sehr schöner Findling hat es nun im Austausch aus dem Findlingsgarten an die Scheune geschafft. Beide Steine wurden professionell gereinigt. Außerdem konnte ein altes Graffiti an der Straßenseite der Scheune beseitigt werden.
blaue Container, Türöffner, Bummsinchen, Hörschleife - 27.5.2020
Die beiden blauen Container, die als Werkstatt und Mieterschuppen dienten, sind auf den Friedhof umgesetzt worden. Am Haupteingang findet sich der Taster zum Türöffnen und innen gibt es viele "Bummsinchen", damit die Türen nicht an die Wand oder gegeneinander schlagen. Im Saal wurde der Verstärker für die Hörschleife installiert, ebenso WLAN für das ganze Haus.
Kehrmaschine, Garderobe, Waldkauz, Leinwand, Findling, Photovoltaik - 20.5.2020
Der Weg vor der Scheune wurde noch einmal von Bauresten, Sand und Split befreit. Die Klappgarderobe konnte angebaut werden. Sie ist in drei verschiedenen Höhen angebracht - Kinder, kurze und längere Menschen. Der Artenschützer brachte zwei Kästen für den Waldkauz mit, die nun an Bäumen im Pfarrgarten hängen. Im Saal gibt es eine große Leinwand und draußen einen neuen, sehr schönen Findling. Er wird noch gereinigt und fachgerecht umpflastert. Endlich, endlich konnte die alte Photovoltaikanlage in Betrieb gehen. Es hat lange gedauert, bis sie wieder genehmigt wurde (obwohl das ganz einfach sein soll …).
Einräumen der Scheune - 16.5.2020
Am Sonnabend, 16. Mai 2020, konnten wir mit einigen Helferinnen und Helfern die Scheune einräumen. Wir sind vom alten Gemeinderaum in die neuen Räume umgezogen. Die Holzstühle werden natürlich weiter benutzt, ein paar Tische und Stühle wurden uns geschenkt. Aber auch neue Möbel - wie die Tische im Saal - wurden ausgepackt und mit dem überaus komfortablen Transportwagen vom Lager in den Saal gefahren. Der große Wandschrank ist ein guter Aufbewahrungsort, wenn die Tische nicht gebraucht werden. Die Transportwagen vermeiden das Tragen der relativ schweren Tische. Die Gruppenräume im Obergeschoß sehen noch unaufgeräumt aus, die Stühle bekommen neue Gleiter und die Schränke werden später eingeräumt. Unter Beachtung der Abstandsregeln brauchen die Arbeiten etwas länger, Zeit haben wir aber.
Herzlichen Dank für alles Mitanpacken.
Handläufe, Putzen, Reparatur, Container, Beete, Garderobe, Türen, Regale, WC - 13.5.2020
An den Treppen sind die zweiten Handläufe angebracht worden, die Stühle für den Saal wurden weiter hergerichtet und Türfenster geputzt. Bei einer Saaltür wurde der Wetterschenkel bei Bauarbeiten beschädigt und ist jetzt ausgetauscht. Die blauen Container sind leer gezogen und können umgesetzt werden. Die Beete sind reichlich bepflanzt dank schöner Blumenspenden. Die Kindergarderobe hängt schon an der Wand, die "Großen" müssen noch warten. Einbau der Saaltüren ist komplett, elektrische Türantriebe ebenfalls, in den Lagerräumen stehen die Regale fertig aufgebaut, großer Dank an die Männergruppe. Das Außen-WC hat einen Windhaken und die Besetztleuchte funktioniert auch.
Videos zur Scheune im "Wirtschaftsfenster MV" - 12.5.2020
Im Youtube-Kanal "Wirtschaftsfenster MV" wird über Projekte in Mecklenburg-Vorpommern im Auftrag der Landesregierung berichtet. Die Pfarrscheune erhält umfangreiche Fördermittel aus dem "Europäischen Fonds für regionale Entwicklung" (EFRE). Videojournalist Micheal Segebarth hat diese Filme erstellt und uns zur Verfügung gestellt.
Video Nr. 507 (3:12) Januar 2019 - Video Nr. 570 (3:30) April 2020
Türen, Stühle, Container, Tor - 6.5.2020
Die Türen zum Saal und in den Fluren EG und OG wurden eingebaut. Damit sind die Türen komplett, sie müssen noch an die Wände und Fußbodenleisten angeschlossen werden. Die vom Hotel "Upstalsboom" aus Kühlungsborn gespendeten Stühle sind inzwischen von der Männergruppe abgeholt worden. Christel Paepcke, unsere versierte Küsterin, arbeitet sie auf mit neuen Gleitern und Beseitigung von Polsterschäden. Die beiden blauen Container, die seit März 2018 als Mieterschuppen bzw. Werkstatt dienten, werden jetzt in die Scheune umgezogen. Das große Hoftor, hinter dem sich die Außentoilette verbirgt, ist fertig aufgearbeitet.
Heute wurden die Bauabnahmeprotokolle mit dem Fliesenleger Kleinfeldt, Parkett Bembé und Elektroanlagen Borchert GmbH unterschrieben. In der kommenden Woche folgen die Gewerke Tischlerei Riebe, Tischlerei BauGut und Sanitär Fa. Hölper&Schade.
Scheune sauber, Feuerlöscher, Schlüssel, Tor, Toiletten, Steckdosen, Regal, Türen - 29.4.2020
Der Saal wurde noch einmal frisch gemacht und auch alle anderen Räume sind vom Baustaub befreit. Herzlichen Dank an das Team um Conny Buck. Die Feinreinigung wird noch weiter gehen, aber neuer Baustaub soll nicht mehr entstehen - oder gleich entfernt werden. Die Schließanlage ist eingebaut, die Kirche ist einbezogen. Das große Tor wurde aufgearbeitet, die Toilettentrennwände eingebaut, ebenso die Steckdosen mittig im Saal zwischen zwei Pfeilern. Und endlich kam die große Lieferung der Brandschutztüren für die Flure, sie war schon vor 14 Tagen erwartet worden.
WC-Container, Wärmezähler, Fluchtplan, Tisch, Beete, Drohne - 22.4.2020
Der WC-Container, der viele Jahre in der Scheune und nun zwei Jahre vor der Scheune stand, wurde abtransportiert und dient nun in der Kommune guten Zwecken. In der Scheune wurde der Hauptzähler für die Wärmemengen installiert, die Wohnungen haben Unterzähler, sodass eine detaillierte Betriebskostenabrechnung möglich ist. Unser Küchenbauer Szymanski übergab uns einen schönen großen Tisch für die neue Scheune, herzlichen Dank. Außen wurden die Beete mit einer Umrandung versehen und die Drohne war wieder da. Video-Journalist Michael Segebarth, der das "Wirtschaftsfenster MV" mit erstellt, hat uns wieder besucht und diese Bilder übermittelt, herzlichen Dank.
Kirchenzeitung MV zur Scheune - 19.4.2020
Eigentlich sollte die Eröffnung der Scheune am Sonntag, 19.4.2020 stattfinden. Das Kontaktverbot (Corona-Pandemie) hat dies unmöglich gemacht. Nichtsdestotrotz erschien der große für die Eröffnung geplante Artikel in der Ausgabe der Mecklenburgischen & Pommerschen Kirchenzeitung zum 19. April. Herzlichen Dank, dass die Veröffentlichung hier möglich ist:
"Eine alte Pfarrscheune neu für alle"
Wandabtrennung, Sanitär, Wohnungstüren - 15.4.2020
Im kleinen Lagerraum sind drei Mieterverschläge eingebaut worden, im Küchenlagerraum EG eine Trennwand. In den WCs hängen die Seifen- und Desinfektionsspender an der Wand und die Wohnungen bekamen die Eingangstüren.
Wandschränke, Regale, Handlauf, Sauberlaufmatten, Lampen, Fahrstuhl, Türöffner - 7.4.2020
Die Wandschränke im Saal und den beiden Gruppenräumen sind (fast) fertig. Es fehlt noch die obere Blende. Im Lager sind die Schwerlastregale aufgebaut, an der Treppe der zweite Handlauf vormontiert - in Kinderhöhe. An beiden Eingangstüren liegen die Sauberlaufmatten gut eingepasst im Boden. Im Saal begann die Lampenmontage. Vor den Aufzugtüren wird der Fußboden angearbeitet und die Eingangstüren bekommen den elektrischen Türöffner.
Türen, Kunst am Bau, Putzen, Wandschrank, PVA - 1.4.2020
Die "normalen" Türen wurden alle eingebaut, es fehlen noch die Feuerschutz- und Wohnungstüren. "Kunst am Bau" - ein schön altes Vorhängeschloß wurde gespendet und schließt nun die Blindtür an der Straßenseite zu. Die großen Scheiben der Außentüren blinken und blitzen nach großen Putzeinsatz. Herzlichen Dank. Die Laufschienen für die Schiebetüren am Wandschrank im Saal wurden eingepasst. Nach wochenlangem Warten ging endlich die neue Photovoltaikanlage in Betrieb, wir haben ab jetzt viel eigenen Strom. Links im letzten Bild stehen die Stromspeicher.
Wandschränke, Aufzug, WC, Erdkabel, Türen, Geschirr - 25.3.2020
Die Wandschränke stehen in voller Größe im Saal und den beiden Gruppenräumen im OG. Die Türen und Verschalung fehlen noch. Der Aufzug wurde eingeputzt und in den WCs schöne breite Spiegel befestigt. Die Männergruppe verlegte die festen Erdkabel fürs SommerCafé und die geplante Regenwasserpumpe für den Pfarrgarten. Eine große Lieferung Innentüren kam an, der Gabelstapler kam leider nicht bis oben an. Räume wurden gereinigt (immer einzeln) und in der Küche lief die große Spülmaschine das erste Mal im Vollbetrieb. Gespült wurden das neue Geschirr und Besteck.
Wege, Sanitär, Küchen, Wandschränke, Türen - 18.3.2020
Die Außenarbeiten mit den Zuwegungen zur Scheune sind mit dem Reinigen des Weges abgeschlossen. Auch die Tastersäule vor dem Eingang ist gesetzt worden. Die Sanitärkeramik ist komplett installiert und in den Küchen OG (wird später mit Wandschränken vervollständigt) und EG ist der Einbau fertig. Der Aufbau der großen Wandschränke im Saal und in den Gruppenräumen OG hat begonnen. Die Stahltüren (Brandschutz) werden an den entsprechenden Stellen eingebaut und im OG sind die Oberlichter zwischen Gruppenräumen und Flur montiert.
Lampen, Treppen, Sanitär, Tischler, Netzwerk, Wege - 11.3.2020
Fast alle Lampen sind montiert und geben auch schon Licht. Die Treppenstufen haben das richtige Holz, die Geländer auch. Die Sanitärkeramik wurde angeliefert und gleich montiert. Das große Außentor bekam den passenden Ausschnitt, die Netzwerkkabel wurden konfektioniert. Und außen sind alle Wege und Beete um die Scheune neu. Sonntag nach dem Gottesdienst konnte ein Blick in den Saal "riskiert" werden.
Parkett, Maler, Lampen, Tür, Wege - 4.3.2020
Die Parkettlegearbeiten sind abgeschlossen - auch im Saal (mit wunderbarem Spendenergebnis!!). Die Maler sind in den Wohnungen, die Elektriker hängen die Lampen auf, zuerst im Flur, dann in den Räumen im OG. Im EG wurde die erste Tür eingebaut und außen sind die Wege in Arbeit.
Parkett - 26.2.2020
Im Obergeschoss ist in beiden Wohnungen und allen Gruppenräume das Parkett fertig verlegt, geschliffen und geölt. Im Flur ist der Kontraststreifen verlegt, wird geschliffen und dann ebenfalls geölt, was den Kontrast deutlich erhöht. Im Saal ist das Parkett noch nicht ganz fertig - Spenden sind immer noch hoch willkommen, siehe Spendenseite.
Treppenaugen, Parkett, Tresor - 19.2.2020
In beiden Treppenhäusern - Gemeinde- und Wohnungseingang - sind die Treppenaugen verkleidet worden. Damit kann das Parkett angearbeitet werden. In den Gruppenräumen OG und den Wohnungen wird das Parkett geschliffen. Außen wurde der Schlüsseltresor für den Notfallschlüssel Fahrstuhl in die Mauer versenkt.
Parkett, Fliesen, Fahrstuhl - 12.2.2020
Im Obergeschoss ist in allen Gemeinderäumen das Parkett verlegt, aber noch nicht geschliffen worden. Die Wohnungen sind bis Ende der Woche fertig. Im Erdgeschoss werden im Flur und danach im Foyer die Fliesen nebst Kontraststreifen verlegt. Der Fahrstuhl wurde angeliefert, montiert und funktioniert im Probebetrieb.
Windhaken, Fensterbretter, Fahrstuhl - 5.2.2020
Für die alten Außentüren werden Windhaken angefertigt, um sie arritieren zu können. Innen sind alle Fensterbretter montiert worden. Der Fahrstuhl wird montiert, die Teile kamen mit einem großen LKW. Das Tor an der Straßenseite bekam aus optischen Gründen die alten Angeln, wenngleich es ja fest an der Wand montiert ist.
Fliesen, Hartöl, Reinigung - 29.1.2020
In den Wohnungen sind die Fliesenspiegel und auch Fußböden fertig gefliest. Im OG und jetzt auch im EG sind alle Balken abgeschliffen und mit einem Hartöl-Anstrich versehen, was die Holzstruktur sehr schön hervorhebt. Die Fensterfalze wurden gereinigt, damit der Baustaub sich nicht reinfrisst, bzw. Schleifspuren beim Betätigen entstehen.
Tore, Fliesen, Gerüst, Balken, Treppen - 22.1.2020
Die aufgearbeiteten Türen und Tore der Scheune sind wieder eingehängt. Sie werden noch mit Windhaken versehen. In den Wohnungen wurde der Küchenfußboden gefliest und im Saal die Holzbalkendecke abgeschliffen. In den Treppenhäusern ist das Gerüst abgebaut und die Treppen sind beide installiert. Auf der Gemeindeseite ist die Treppe mit Holzbohlen vorläufig belegt, damit sie als Bautreppe dient. Die andere Treppe wird gleich mit den richtigen Treppenstufen versehen.
Maler, Maler, Maler - 15.1.2020
Auf die Trockenbauwände wurde Malerflies tapeziert. Die Schallschutzdecke im Foyer ist fertig gestrichen. Im Saal sind alle Wände, auch die Fachwerkwand, weiß grundiert, dadurch bekommt der Saal eine neue Weite. Die Balken im Saal werden gesäubert.
Trockenbau, Maler, Blitzschutz, Regenwasser - 8.1.2020
In der Weihnachtspause ist die Scheune trocken geheizt worden. Durch den Putz und Estrich war viel Feuchtigkeit in den Bau gekommen. Seit 6.1.20 arbeiten die Trockenbauer und Maler in großer Besetzung in der Scheune. Außen wird der Blitzschutz installiert und die Regenwassereinläufe sind fertig.
Trockenbau, Fliesen, Heizung, Gas, Regenwasser - 19.12.2019
Die letzten Decken wurden vom Trockenbau geschlossen, Fliesenspiegel angelegt, die Gasuhr eingebaut, Heizung in Gang gesetzt, sogar die Erdwärmepumpe läuft. Die Gasheizung ist eigentlich als Spitzenlastkessel gedacht, leistet jetzt aber große Unterstützung bem Trockenheizen der Scheune. Draußen sind die Hofeinläude an allen vier Ecken der Scheune gesetzt worden.
Maler, Elektro, Heizung, Fliesen, Gerüst, Abrechnung - 11.12.2019
Die ersten Wände sind weiß grundiert, Trockenbaufugen werden gespachtelt und alle Steckdosen und Schalter sind gesetzt. Im Hausanschlußraum wird die Heizung installiert incl. großem Pufferspeicher, der auch eine Elektropatrone erhält, um überschüssigen Solarstrom selbst zu nutzen. In der Küche EG entsteht der erste Fliesenspiegel. Die Treppenhäuser erhalten wieder ein Gerüst, um die Trockenbau- und Malerarbeiten zu vollenden. Draußen sind die Dachrinnen mit einem offenen Auslass versehen, um sie besser reinigen zu können. Darunter werden noch Hofeinläufe gesetzt. Die erste große Fördermittelabrechnung wird fertig gemacht.
Estrich fertig - 3.12.2019
Am Dienstag, 3.12.2019, wurde der Estrich in allen Räumen der Scheune fertig verlegt. Dazu gab es eine extra Sandfuhre in der Morgenröte, damit nicht alles so grau ist.
Estrich - 27.11.2019
Der Estrich kommt in die ganze Scheune. Die Estrichleger haben oben in den Wohnungen angefangen, die Bilder zeigen noch Räume im OG und den langen Flur.
Fußbodendämmung, Heizung - 20.11.2019
In der gesamten Scheune wurde die Fußbodendämmung (EG) und Trittschalldämmung (OG) verlegt und gleich darauf die Heizschlangen der Fußbodenheizung. Dazu kam auch der Gasanschluß. Damit sind alle Versorgungsanschlüsse - Wasser, Abwasser, Strom, Gas, Telekom - vorhanden.
Fahrweg, Baufreiheit, Elektro - 13.11.2019
Der Weg vor der Scheune ist wieder gepflastert, dort wo die Erdwärmeleitungen verlegt wurden. Innen sind die Räume weithin leer, um ab dem 14.11.2019 die Wärmedämmung in EG und OG zu verlegen, auf die dann die Fußbodenheizung und der Estrich aufgebaut werden. Auch die Elektrokabel sind nun alle im Verteilerkasten verschwunden.
Radiotrailer zu Fördermitteln Fernsehlotterie
Im Juli 2019 wurde das Radio-Interview mit Friedrich Heilmann, Leiter des Scheunenausschusses der Kirchengemeinde geführt. Die Journalistin Katharina Elsner stellte den Trailer zusammen und er wurde seitdem des Öfteren auf NDR 1 gesendet. Hier kann er gehört werden (1 Minute). Wir danken dem NDR herzlich für die Genehmigung zur Veröffentlichung.
Stromanschluß, Treppenhaus, Putz, Trockenbau - 6.11.2019
Der Stromanschluß ist gelegt und der Baustromkasten konnte abgebaut werden. Die provisorische alte Treppe ist ausgebaut, die Putzarbeiten beendet und der Trockenbau geht flott weiter. Ende der Woche wird der Bauzaun abgebaut, der Baumschutz ist schon weg.
Stadtkulturmagazin 0381 - November 2019
Von April bis Juli 2019 konnten wir uns am Crowdfunding-Projekt der OSPA beteiligen - mit 11.504 Euro erfolgreich. Die OSPA unterstützte uns und 21 andere Projekte mit bis zu 2.500 Euro. In der Novemberausgabe des "Rostocker Kulturmagazins 0381" wird unser "Klein-Groß-Eltern-Kind-Projekt" stellvertretend für alle anderen Projekte vorgestellt. Gute Werbung für die OSPA, für die Plattform "99 Funken" und natürlich für uns. Wir danken "0381" herzlich für die Genehmigung, die Seite 15 aus der Novemberausgabe hier zu veröffentlichen.Das ganze Magazin finden Sie hier.
Erdkabelverlegung, Putzarbeiten, Baubesprechung - 30.10.2019
Beim Verlegen der Erdwärmeleitungen wurden auch Stromkabel in die Erde gelegt. Sie wurden von der Männergruppe weiter geführt zu den Hoflampen und zum Gartenhaus SommerCafé. In der Scheune gingen die Putzarbeiten im Saal und Foyer weiter.
Putzarbeiten Erdgeschoss - 23.10.2019
Die Putzarbeiten im Erdgeschoss gehen weiter mit dem Ziel, spätestens am 6.11.2019 fertig zu sein.
Erdwärmesonden, Befüllung - 16.10.2019
Nachdem die Erdarbeiten abgeschlossen sind, konnten die Leitungen bis in den Haustechnikraum befüllt werden. Im Außengelände ist ein Schacht gesetzt - LKW-tauglich, sodass wir auch in Zukunft keine Probleme mit der Standsicherheit haben werden.
Die Putzarbeiten im EG sind wieder aufgenommen worden, sodass wir nach der Verzögerung durch den Tod von Herrn Boyke weiter gut voran kommen.
Erdwärmesonden, Elektrokabel - 10.9.2019
Nachdem im April 2019 die vier Erdwärmesonden gesetzt wurden, konnten nun die Anschlußleitungen verlegt werden. Sie reichen bis in den Hausanschlußraum. Parallel dazu wurden Elektrokabel für die Hof- und Gartenversorgung gelegt. Die große Parkplatzwiese ist nun einmal mehr beansprucht worden. Wir werden sie grundlegend wieder herstellen müssen.
Werner Boyke gestorben - 27.9.2019
Der Inhaber von "Boyke Hochbau", Werner Boyke, unserer Bauhauptfirma, ist am 27. September 2019 an den Folgen einer Lungenentzündung gestorben. Unser herzliches Beileid haben wir Frau Boyke überbracht.
Eine Nachfolge ist nicht geregelt, sodass wir nun einen kleinen Baustillstand, insbes. Putzarbeiten im Erdgeschoss, haben. Ein Mitarbeiter der Firma erledigt Maurerrestarbeiten innen und außen. Wir hoffen, dass ab dem 9.10.2019 die juristischen Fragen geklärt sind und zügig weiter gearbeitet werden kann.
Die Trauerfeier findet am 17.10.2019 um 10 Uhr in der Satower Trauerhalle statt.
Gerüst, Spendenziegelwand, Elektro, Putz - 25.9.2019
An drei Seiten ist die Scheune nun ohne Gerüst. Die Spendenziegelwand konnte noch einmal besichtigt werden, bevor sie vor Staub und Spritzern geschützt wird beim Verputzen im Erdgeschoß. Im OG sind die Elektroinstallationen fertig und auch die Putzarbeiten.
Photovoltaik und Gerüstabbau - 18.9.2019
Die alte Photovoltaikanlage ist wieder komplett auf dem Dach installiert und durchgeprüft. Die neue PV-Anlage ist ja schon länger fertig.
Daher kann nun auch das Gerüst abgebaut werden, es wird bald komplett verschwunden sein.
Kabel, Trockenbau, Putz, Sanitär - 11.9.2019
Im Hausanschlussraum laufen sehr viele Rohre und Kabel zusammen. Im OG gehen der Trockenbau und die Putzarbeiten weiter. Das Bad im OG zeigt ebenfalls viele Leitungen.
Feldsteinmauer, Fensterbänke, Putz und Folie - 4.9.2019
Um das Mauerwerk ringsherum gut ausbessern zu können, wurden die Feldsteinmauern ein Stück abgetragen, sie sollen später wieder ans Mauerwerk anlehnt werden. Im OG stehen die Trockenbauwände im langen Flur. Die Fensterbretter sind eingebaut und alle Lagerräume fertig geputzt. Im Technikraum EG wird eine Geruchssperre angebracht.
Trockenbau, Brandschutz, Putz, Spendenziegelwand - 28.8.2019
Im Obergeschoss geht der Trockenbau zügig weiter. Auf dem Boden wird eine Brandschutzplatte (Fermacell) verlegt. Im großen Lagerraum EG gehen die Putzarbeiten weiter und die Spendenziegelwand wächst langsam weiter.
Photovoltaik neu und alt - 23.8.2019
Am 22. und 23. August 2019 wurde die neue und zum Teil die alte Photovoltaikanlage aufs Dach gebaut. Die Dachhaken waren schon in der vorigen Woche fertig verschweißt worden. Auch die Leitungen wurden bis in den Technikraum verlegt. Die Altanlage sieht schon deutlich mtigenommen aus, aber die Module funktionieren noch. Zwei Module müssen neue Anschlußleitungen bekommen, dann wird der Rest der Anlage aufs Dach gebracht.
Grundstein, Zeitkapsel, Spendenziegelwand - 22. 8. 2019
Am Donnerstag, 22. August 2019 um 15.30 Uhr, fandt die große feierliche Grundsteinlegung mit dem Einmauern einer Zeitkapsel in der Pfarrscheune statt. Obwohl der Bau weit fortgeschritten ist legten wir einen Grundstein im Innern des Hauses mit der Aufschrift „2019“. Dahinter wird eine Zeitkapsel mit Dokumenten vermauert: Bauzeichnungen, Tages- und Kirchenzeitungen, Gemeindeblatt, Euromünzen, Gedenkmünze zu 750-Jahre Lichtenhagen mit Kirchenprägung und ein persönlicher Brief an die Nachfahren. Die Zeitkapsel ist, wie schon bei der erneuerten Kirchturmkugel 1998, aus Blei gefertigt. Damit kann sie allen chemischen und biologischen Bedrängnissen trotzen.
Aus den Spendenziegeln entsteht über dem Grundstein und der Zeitkapsel eine Wand, in der die Ziegel gut sichtbar sein werden. Jede und jeder kann in Zukunft die Nummer des „eigenen Spendenziegels“ im Foyer der Scheune sehen.
Vera gab mit Geigenspiel den Auftakt. Das Füllen der Zeitkapsel folgte und sie wurde dann verschlossen. Währenddessen konnte der Grundstein gelegt werden. MdB Peter Stein überbrachte besondere Grüße mit einer Rose "Rostock". Zeitkapsel und Grundstein bilden die Basis für die Spendenziegelwand. Die Vorsitzende des Fördervereins, Ulrike Küster, eröffnete Das Mauern der Spendenziegelwand. Noch während der Feier konnte der letzte Spendenziegel "an den Mann" (im wahrsten Sinn des Wortes) gebracht werden.
Spendenziegel aus - 22.8.2019

Insgesamt wurden 105 Spendenziegel hergestellt. Sie sollen eine gut sichtbare Wand im Foyer der Scheune zieren, sodass jede und jeder die eigene Nummer gut wieder finden kann.
Keine Ziegel mehr frei! Wunderbar, alle sind "erspendet" worden.
Trockenbau, Putzflächen, Artenschutz, Dach, Metallfenster - 14.8.2019
Innen geht der Trockenbau zügig weiter, in den Wohnungen stehen die Wände. Auf der Gemeindeseite wird die Decke vorbereitet. Der Außenputz ist fertig, innen ist zuerst der Hausanschlußraum verputzt worden.Der Artenschützer hat alle Fledermaus- und und Vogelnistkästen außen angebracht, wie es die Baugenehmigung vorschreibt. Die Haken für die Photovoltaikanlage sind verschweißt, der Entlüftungsschacht für den Lift ist installiert. Die Metallfenster sind alle eingesetzt.
Saal, Mauerfugen, Putz, Trockenbau, Heizung-Sanitär - 7.8.2019
Die Männergruppe hat mit einem großen Einsatz alle alten Nägel im Saal aus den Balken entfernt. Ein Großteil der Fugen außen sind verschlossen, viel Kleinarbeit steht noch an. Die großen Putzflächen im OG sind fertig. Der Trockenbau geht weiter, große Materialmengen werden geliefert, die Umrisse der Wohnungswände sind erkennbar. Im EG sind die Elektroarbeiten abgeschlossen. Heizleitungen werden verlegt und im letzten Bild ist ein sog. D-Schot zu sehen - die brandsichere Durchführung der Abwasserleitung durch die Geschoßdecke.
Trockenbau, Maurer, Putz, Heizung - 31.7.2019
Die Trockenbauarbeiten sind in vollem Gange, Rigipsplatten wurden angeliefert, Decken abgehängt. Außen werden die Fensterbänke komplettiert und die Putzflächen an der Straßenseite sind fertig, ebenso an der Westseite. Die Fachwerkwand wird saalseitig verputzt und ein erster Heizverteilerkasten für die Fußbodenheizung ist angebaut worden.
Crowdfundingprojekt erfolgreich - 25.7.2019

Am 25. April 2019 starteten wir auf dem Portal der OSPA das "Klein-Groß-Eltern-Kind" Projekt, um 11.440 Euro Spenden in der Internet-Community einzuwerben. Am letzten Tag, 25. Juli 2019, war es so weit, wir gingen mit 11.504 Euro durchs Ziel. Möglich wurde dies durch viele kleine und große Spenden, herzlichen Dank. Anteil daran haben Mitarbeiterinnen und Mitarbeiter der OSPA, die zum 25-jährigen Jubiläum der OSPA in diesem Jahr einen Spendengutschein je selbst einsetzen konnten, was sie bei uns reichlich getan haben. Dazu kommt noch die große Summe von 2.500 Euro, die die OSPA auslobte, wenn wir die Fundingschwelle erreichen. Wir haben beides erreicht, zuerst die Fundingschwelle von 9.360 Euro, nun auch das Ziel mit 11.440 Euro. Der Ausbau des Raumes im OG der Scheune kann im Herbst erfolgen, wenn die vorhergehenden Arbeiten abgeschlossen sind. Siehe auch Blog beim Crowdfundingportal.
Elektro, Fotovoltaik, Putz, Baubesprechung, Sanitär - 24.7.2019
Die Elektroarbeiten gehen weiter, auf dem Dach wurden die Haken zur Installation der PV-Anlagen gesetzt. Die Fensterleibungen werden zuerst verputzt, die Türen von unten mit Thermobrettern abgeschlossen, viele Gewerke bei der Baubesprechung. Die ersten Toilettenspülkästen sind vorbereitet und im OG hat der Trockenau begonnen.
Feldsteinsockel, Putzträger, Fachwerkwand - 17.7.2019
Eine kleine Fläche vom Feldsteinsockel war vor Zeiten mit Beton "verputzt" worden. Die Männergruppe hat sich an die mühevolle Kleinarbeit herangewagt und den Putz beseitigt. Nun sieht es wieder gut aus. An der Fachwerkwand flurseitig wird der Putzträger angebracht, saalseitig wurde eine Probefläche verputzt. Im OG sind die Fensterbretter innen angelegt worden.
Dämmung, Fachwerkwand, Elektro, Baubesprechung - 11.7.2019
Die Einblasdämmung ist fertiggestellt, das Dachfenster von oben. Die Balken der Fachwerkwand im Saal sind komplett abgebürstet. Die Holzstürze über den Außentüren sind erneuert - mit Eichenholz aus der Scheune. Die Elektroarbeiten im EG und OG gehen weiter, soweit es jetzt möglich ist, denn die Trockenbauarbeiten haben noch nicht begonnen. Bei der wöchentlichen Baubesprechung (heute 3 Stunden) wurde detailliert jedes Fenster geprüft und die weiteren Arbeiten festgelegt. Und ein Stilleben auf der Baustelle darf nicht fehlen.
Elektrobau, Fugen, Dach, Dampfsperre, Einblasdämmung, Richtkrone - 3.7.2019
Die Elektrofirma hat alle Schalter, Steckdosen und Verteiler angezeichnet. Außen wird das Feldsteinmauerwerk verfugt. Auf dem Dach ist der Ortgang fertig und die Durchbrüche sind hergestellt. Nach der Fertigstellung der Dampfsperre wird die 30 cm dicke Holzfaserdämmung eingeblasen. Vier Wochen nach dem Richtfest wurde die Richtkrone abgebaut.
Treppenauge, Fledermauskasten, Türen - 26.6.2019
Das große Treppenauge beim Gemeindeeingang ist fertig. Die große Eingangstür ist drin, ebenso zwei eiserne Bautüren für den Zugang. Vier Nistkästen für Fledermäuse sind unter die Dachhaut gesetzt. Die Abdichtung nach außen ist wichtig für die Dachdämmung, die später eingeblasen wird.
Feuchtigkeitssperre, tragender Balken, Dach - 19.6.2019
Die Treppenschwellen sind verklebt worden. Im Treppenhaus beim Gemeindeeingang wurde ein großer Unterzug eingebaut. Das Dach ist fast fertig und bietet einen schönen Blick Richtung Kirche.
mysteriöser Fund an der Scheune - 17.6.2019
Am Montag, 17. Juni 2019, fanden die Maurer bei Schachtarbeiten nahe der Außenwand an der Hofseite einen runden metallenen Gegenstand, ca. 20 cm unterhalb der Erdoberfläche. Die Arbeiten wurden sofort eingestellt, erst Feuerwehr, dann Polizei gerufen und schließlich kam der Munitionsbergungsdienst. Der Fund stellte sich als harmlos heraus, wobei bisher noch niemand richtig erklären konnte, was das gewesen sein kann. Ein Druckbehälter? Wofür?
Eine Woche später war der metallene Gegenstand ausgebaut - es war wohl ein Druckausgleichsbehälter für die Wasserleitung in der Scheune.
Sperre, Deckenschalung, Fenster, Artenschutz, Dachrinne - 12.6.2019
Im Erdgeschoss ist der gesamte Fußboden mit der Feuchtigkeitssperre abgeklebt. Im Obergeschoss ist das Dach fertig, fast alle Fenster sind eingebaut, bis auf eins, was als "Durchreiche" für die Balken dient. Die Fledermaus-Einflugöffnungen sind angelegt, die Kästen dahinter werden vom Artenschützer eingebaut. Ebenso sind die bisherigen Nischen in der Traufe wieder vorhanden, allerdings nach innen verschlossen. Der Ziergiebel an der Ostseite ist fertig und die Dachrinne an der Straßenseite, dicht gefolgt von der Hofseite. Die alte Treppe dient als Bautreppe, um nicht immer übers Gerüst gehen zu müssen.
Spende und Richtfest - 6.6.2019
Am Donnerstag, 6.6.2019, fand um 15 Uhr zuerst die Übergabe des Erlöses vom Spendenlauf der Grundschule Lichtenhagen statt. Im Anschluss feierten wir das Richtfest mit Ansprache von Pastorin Kieseler, Richtspruch vom Zimmermann, Richtkranz und Anstoßen.
Ab 14 Uhr zogen Gewitter auf, wir verlagerten alle Feierlichkeiten in die Scheune, die sich dabei sehr bewährt hat. Der Bläserchor stimmte uns mit Chorälen ein, wir sangen "Großer Gott wir loben dich" und "Nun danket alle Gott".
Die Schule überreichte den Spendenscheck mit 2.222 Euro an die Kirchengemeinde und die Schülerinnen und Schüler erhielten herzlichen Beifall und große Anerkennung und Dank.
Großer Dank ging auch an die Bauleute, die fachgerecht die Arbeiten erledigt haben, sodass wir das Richtfest feiern konnten.
Trotz Regen und Gewitter versammelten sich alle unter dem Richtkranz. Zimmermann Ronny Fürst sprach den Richtspruch. Friedrich Heilmann, Leiter des Scheunenausschusses, schlug den symbolischen letzten Nagel ein und alle stießen auf das bisherige und weitere Gelingen des Scheunenumbaus an.
Bei Scheunenbier, belegten Brötchen, Kaffee und Kuchen saßen wir noch lange zusammen, ein gelunges Richtfest. herzlichen Dank an das SommerCafé-Team und alle fleißigen Hände, die das Fest so wunderbar gestaltet haben.
Spendenübergabe und Richtfest - 6.6.2019

Herzliche Einladung!
Am Donnerstag, 6.6.2019, findet um 15 Uhr zuerst die Übergabe des Erlöses vom Spendenlauf der Grundschule Lichtenhagen statt. Die Vorsitzende des Schulvereins und Schülerinnen und Schüler der 4. Klasse sind dabei.
Im Anschluss feiern wir das Richtfest mit Ansprache von Pastorin Kieseler, Richtspruch vom Zimmermann, Richtkranz und Anstoßen. Pressemitteilung
Herzlich Willkommen!
Dacharbeiten - 29.5.2019
Die Arbeiten am Dach gehen zügig weiter, etliche Sparren müssen doch ausgetauscht werden, weil sie von oben her angegriffen sind. Die Kehle wird ausgemauert und Brutöffnungen gelassen, wie es vorher auch war. Die erste Dachhaut ist aufgetragen, es folgen noch zwei weitere.
Unser Crowdfunding-Projekt in der Stadthalle - 26.5.2019
Am Sonntagnachmittag fand ein Relegationsspiel zum Aufstieg in die 2. Bundesliga des Rostocker Handballclubs Empor (3.700 Zuschauerinnen und Zuschauer) statt. Die OSPA, die unser Crowdfunding-Projekt angeregt hat und fördert, hatte uns eingeladen, dort neben 5 anderen Projekten für uns Werbung zu machen. Ein Plakat und Stehtisch, dazu 1.000 Postkarten zu unserem "Klein-Groß-Eltern-Kind" Projekt standen zur Verfügung. Claus Huhndorf, Cordula und Friedrich Heilmann waren 90 Minuten vor dem Anpfiff und während der Halbzeitpause am Stand, aber auch im ganzen Foyer unterwegs, um Werbepostkarten zu verteilen. Die Scheunenschokolade war ebenso dabei wie die Einkaufswagenchips.
Spenden sind weiterhin sehr erwünscht, weil wir die "Schwelle" von 9.360 Euro erreichen müssen, sonst zählt die ganze Crowdfunding-Aktion nicht.
Dacharbeiten - 22.5.2019
Am 21. Mai 2019 begannen die Dacharbeiten, die in den nächsten Tagen zügig fortgesetzt werden. Jeden Tag wird so viel Dachhaut aufgenommen, wie zum Abend wieder geschlossen werden kann, damit kein Wasser in die empfindliche Dämmung der Außenwand eindringen kann. Schadhafte Dachsparren werden ersetzt. Im vorletzten Bild ist die Auflattung des Sparrens zu sehen. So dick wird die Unterdachdämmung dann sein. Die Dachpappe im letzten Bild hängt etwas durch, weil darunter die Wand noch gemauert werden muss.
Saaldeckenbalken, Abriss und Aufbau - 22.5.2019
Die Geschoßdecke soll im großen Saal von unten sichtbar bleiben. Sie muss auch größere Last aufnehmen können. Daher werden schadhafte Balken ausgewechselt und zahlreiche neue Balken dazu gesetzt. Beim Abriss eines doppelten Bodens kamen schöne Freßschätze zum Vorschein.
Schmuckgiebel, Feuchtigkeitssperre, große Tür EG - 17.5.2019
Die Zimmermänner hatten eine feine Arbeit mit der Wiederherstellung des Schmuckgiebels, hier zuerst Westgiebel. Im großen Lagerraum und der Werkstatt wurde die erste Sperrschicht aufgeklebt, um dann die neuen Fenster abstellen zu können. Die große Tür wurde gleich eingebaut.
Die alte Wohnungstreppe kann noch als Bautreppe dienen und eine Taube hat sich im Bau verirrt, aber wieder heraus gefunden.
Spendenlauf der Grundschule - 14.5.2019
Am Dienstag, 14. Mai 2019 fand ein Spendenlauf in der Lichtenhäger Grundschule statt. Alle 4 Klassenstufen waren mit insgesamt 94 Kindern dabei. Eltern und Großeltern spendeten für jede absolvierte Runde eine bestimmte Summe, meist 1 Euro. Auf den Unterarmen der Kinder wurde jede Runde gezählt. Die besten der Klassen 1-4 kamen auf 22,23,24 und 26 Runden. Durchschnittlich waren es 18-20 pro Kind.
Die eingegangenen Spenden werden aufgeteilt für die Pfarrscheune und das "grüne Klassenzimmer", das auf dem weiten Schulgelände entstehen soll. Die Übergabe der Spenden an die Scheune erfolgt Ende Mai. Bis dahin sollen alle Überweisungen beim Schulverein eingegangen sein. Wir waren mit einem Spendeziegel zur Ansicht und den Scheunenflyern zur Information vertreten.
Herzlichen Dank an den Schulverein, das Kollegium der Grundschule, die Spenderinnen und Spender und natürlich an die Kinder, die alle ihr Bestes gaben, um möglichst viele Runden zu schaffen.
Erste Fenster eingebaut, Abfallholz abgefahren - 10.5.2019
Am 9.+10. Mai 2019 wurden die ersten neuen Fenster im Westteil der Scheune eingebaut. Im anderen Teil der Scheune gehen die Rohbau- und Zimmermannsarbeiten weiter und alles Abbruchholz wurde abgefahren. Auch das große Betonsilo ist schon weg.
Mauer Straßenseite, Unterdielen Wohnungsseite - 8.5.2019
Die Rohbauarbeiten innen gehen bald zu Ende. Die letzte neue Außenmauer wird gerade gebaut. Parallel dazu sind die Zimmermannsarbeiten in vollem Gange. An den Wänden sind die Abdrücke der früheren Balken zu sehen. Im Westteil der Scheune, in dem die beiden Wohnungen entstehen sollen, werden die Unterdielen verlegt, worauf dann der Fußboden mit Heizung aufgebaut wird.
Grundschule zu Besuch - 7.5.2019
Alle Schülerinnen und Schüler mit ihren Lehrerinnen der Lichtenhäger Grundschule kamen zu einem Besuch in die Scheune. Der Saal war blitzeblank aufgeräumt und alle fanden locker Platz. Die Vorsitzende vom Schulverein informierte alle über den Zweck des Spendenlaufs am Dienstag, 14.5.2019 ab 16 Uhr auf dem Sportplatz - für die Scheune. Vielleicht kann die Abschlußfeier für die 4. Klasse im nächsten Jahr schon im fertigen Saal stattfinden.
Bohrungen erfolgreich - 29.4.2019
Am 24.4.2019 kam die Bohrfirma GeoHanse mit allen Geräten an. Die ersten drei Bohrungen bis knapp 100 m Tiefe waren bis Freitag ohne Probleme erfolgt. Am Montag, 29.4.2019, sollte die vierte und letzte Bohrung niedergebracht werden, was jedoch erst im zweiten Anlauf klappte. In 14 m Tiefe lag ein unüberwindliches Hindernis im Weg und die Bohrung mußte erneut angesetzt werden - mit Erfolg. Auf unserer Gemeinde-Parkplatzwiese ragen nun vier Schlauchpaare aus dem Boden - die Erdwärmesonden. Sie werden demnächst miteinander verbunden und als Vor- und Rücklauf in die Scheune zum Technikraum geführt und dort an die Wärmepumpe angeschlossen. Dann werden sie nicht mehr zu sehen sein und Platz kann wie bisher genutzt werden.
Spendensammeln - einmal anders, 26.4.2019

Die Ostseesparkasse, OSPA, hat uns eingeladen, auf einer neu installierten Plattform Spenden für die Scheune zu sammeln. Schauen, klicken, spenden!
Wir sind mit dem "Klein-Groß-Eltern-Kind-Treffpunkt" vertreten. Die Ausstattung eines Gruppenraums im Obergeschoss der Scheune ist unser Projekt. Schön für uns ist, dass das Geld jeder Spenderin, jedes Spenders, bis 250 Euro durch die OSPA verdoppelt wird (bis gesamt 2.500 Euro). Und wir müssen die Schwelle von 9.360 Euro bis zum 25.7.2019 erreichen, ansonsten wird das Geld nicht ausgezahlt und die Spenderinnen und Spender erhalten es zurück. Schauen, klicken, spenden!
Hier geht es zum Projekt-Blog.
Mit von der Partie im ersten Anlauf der OSPA-Crowdfundingplattform sind der FC Hansa Rostock, das Jugendmusikkorps Rostock, die Rostocker Stadtmission und EBC (Erster Basketballclub Rostock). "99Funken" ist ein sog. Crowdfunding-Portal, wo sich Vereine und Kirchengemeinden mit einem besonderen Projekt darstellen können. Artikel in der Ostseezeitung vom 26.4.2019. Unten sind Bilder der Pressekonferenz. Schauen, klicken, spenden für unser Projekt!
Bohrungen für Erdwärmesonden - 25.4.2019
Anfang 2019 wurden die Fördergelder für die Installation unserer Heizungsanlage bewilligt - Geothermie+Wärmepumpen-Heizung. Überraschend für uns konnte die Firma GeoHanse die Bohrungen jetzt schon starten. Osterdienstag kam der große Transporter mit allen Materialien an, der Wasseranschluß wurde durch uns organisiert und die ersten beiden Bohrungen (Stand 25.4.2019) waren erfolgreich.
altes Holz, neues Holz, Zimmermannsarbeiten, Maurer - 16.4.2019
Die letzten Balken aus der Scheune, die jetzt abgerissen wurden, fanden guten Absatz. Wer jetzt noch Interesse hat, muss sich schnell melden. Die Zimmerleute bauen die Geschossdecke neu auf, die Maurer ziehen die neuen Außenwände bis unter die ersten Dachbalken.
CDU Bundestagsabgeordneter Peter Stein zu Gast - 15.4.2019
Am Montagvormittag war MdB Peter Stein und sein Mitarbeiter im Rostocker Büro, Olaf Seidenfaden, auf unserer Scheunenbaustelle zu Gast. Ulrike Küster, Vorsitzende vom Förderverein und Wolfgang Schultz, ebenso Förderverein, Pastorin Anke Kieseler und Friedrich Heilmann, Leiter des Scheunenausschusses, empfingen ihn zu einem großen Rundgang durch die Baustelle. Über das Baugerüst konnte ein Blick ins Obergeschoss getan werden. Neben den Baufragen kam die Energieeffizienz zur Sprache. MdB Stein ist u.a. Mitglied im Energieeffizienzkreis und Klimakreis des Bundestages. Er kennt unsere Gemeinde von früheren Besuchen, beim SommerCafé, und war beeindruckt, welches schöne Projekt wir realisieren, das er gern, so weit möglich, unterstützen will.
Beton, Fahrstuhl, Abriß, Wand Saal, Probeschleifen - 9.4.2019
Der Ringanker im Westteil bis zur Mittelwand ist fertig, im Fahrstuhlschacht ist die obere Aufhängung gesetzt, der alte Fußboden im Westteil ist komplett entfernt und im Saal wurde eine letzte kleine Wand gebaut. An der Fachwerkwand im Saal fand ein erstes Probeschleifen statt. Die Fachwerkbalken werden schön aussehen.
Westgiebel innen fertig, viel Holz - 2.4.2019
Im Westteil, wo später die Wohnungen sein werden, sind die Innenwände bis zum Giebel hoch fertig. Im anderen teil der Scheune wird für diese Wände Baufreiheit geschaffen und ganz viel Holzkonstruktion entfernt.
Dieses Holz kann gegen eine Spende abgeholt werden - bitte Friedrich Heilmann anrufen - 01635030710 oder eMail schicken.
"Scheunenschokolade" im Weltladen - 31.3.2019
Am Weltladen-Tisch gibt es ab 31.3.2019 "Scheunenschokolade", fairgehandelt, bio, Vollmilch oder Zartbitter und 1 Euro davon für die Scheune. Vielleicht ein Geschenk für eine liebe Freundin oder einen lieben Freund?
Die Tafeln werden ohne Aufdruck geliefert und wir können ein Cover unserer Wahl aufkleben.
Fördermittel für PV + LED - 27.3.2019
Zwei Fördermittelbescheide sind eingegangen, die jeweils 50% unserer Bausumme ausmachen. Die gesamte Umrüstung der Beleuchtung im Gemeindebereich auf LED-Technik wird mit 48.844,82 Euro gefördert. Die anderen 50% sind Eigenmittel.
Der zweite Betrag von 16.253 Euro bezieht sich auf die neue Photovoltaik-Inselanlage (7,6 kWp) plus Batteriespeicher (18,6 kWh). Auch hier kommen Eigenmittel für die anderen 50% zum Einsatz. Der Strom aus dieser Anlage wird hauptsächlich für den Betrieb der Wärmepumpe genutzt werden, die wiederum aus den Erdwärmesonden gespeist wird.
Die bisherige PV-Anlage (5,6 kWp) ist zur Zeit eingelagert und wird nach der Dachrekonstruktion wieder installiert. Der gesamte Strom wird ins Netz eingespeist und vergütet.
Pressemitteilung des Energieministeriums, Pressemeldung der Nordkirche
Dämmung, Außen-WC, Innenwände, Fundstück - 20.3.2019
Zwischen die beiden Außenwände wird Dämmstoff eingebracht, hier am Ostgiebel. Die Tür zum Außen-WC ist gemauert und innen sind die Wände z.T. bis an den Ringanker hochgezogen. Im Saal liegen die Rundbögen der Fenster jetzt alle offen, die Fachwerkwand ist an die hintere Saalwand herangezogen. Und in einem Winkel der Scheune fand sich diese alte Uhr.
Abbruchholz aus der Scheune - 13.3.2019
Aus der Scheune wird viel Holz heraus genommen. Bisher sollte es für weitere Bauarbeiten als Hilfsholz zur Verfügung stehen, nun ist es aber zur Abfuhr freigegeben. In den nächsten Wochen kommt noch viel mehr Holz dazu. Bis auf wenige mit Farbe versehene Teile (wird getrennt entsorgt) ist alles völlig unbehandelt und stand ca. 130 Jahre im Trockenen.
Wer daran Interesse hat, möge sich bitte bei Friedrich Heilmann email oder Handy 01635030710 melden. Ohne Vorabsprache darf die Baustelle nicht betreten werden (Sicherheit).
Wir bitten um eine Spende, die gern an den Förderverein geschickt werden kann, siehe oben.
Nordseite Innenwand, Saalwände fertig, Fundstück - 13.3.2019
Auf der Nordseite sind die Wände halbhoch und die Stürze werden gebaut. Die Tür von der Außentoilette ist angelegt. Im Saal sind die Lüftungslöcher in der alten Außenwand geschlossen und die Wände sind fertig zum Gießen des Ringankers. In einem Mauervorsprung fand sich dieser Tischtennisball.
Wände wachsen, spätere Außentoilette angelegt - 6.3.2019
Im gesamten Gemeindebereich wachsen die Wände, nachdem die aufwendigen Vorarbeiten - Sägen der Feldsteine, Sperrputz, Sperrschicht - geschafft sind. Auch an der Nordwand zur Straße hin. Das Podest ist die spätere Außentoilette, dort wo vorher der Container stand. Da das Gelände insgesamt ein leichtes Gefälle hat, wird sie erhöht angelegt, um rollstuhlgerecht reinfahren zu können. Im Saal sind die Stützen alle verlängert.
Fahrstuhlschacht, Stützenverlängerung - 27.2.2019
Der Fahrstuhlschacht ist im Rohbau fertig. Im OG steht die erste Innenwand einer Wohnung. Im EG wurden die Stützen, die vorher ein Betonfundament hatten, verlängert. Die Drehstützen, die die Last bisher getragen haben, können nun entfernt werden.
Fensterstürze, Fundament, Hohlkehle, Wandanker - 20.2.2019
Nach der Fertigstellung der Bodenplatte gehen die Arbeiten zügig weiter. Fensterstürze stehen bereit, das Fundament der neuen Außentoilette am Ostgiebel steht, die Hohlkehle an den Wänden ist angelegt und damit die Voraussetzung geschaffen, dass die Feuchtigkeitssperre aufgetragen werden kann. Am Westgiebel sind die neuen (alten) Wandanker eingebaut und jemand (vom Fachpersonal) hat die schöne freie Fläche zum Einradfahren genutzt - nicht nachmachen bitte.
Bodenplatte - 15.2.2019
Die Vorbereitungen zum Gießen der Bodenplatte dauerten eine ganze Woche, am Freitag, 15. Februar 2019 kam die Betonpumpe und der Beton und die Bodenplatte wurde komplett fertig - samt Spuren im frischen Beton.
Feldsteine, Mauern wachsen, Bodenaushub, Info-Faltblatt - 14.2.2019
Am 11.2.2019 wurde noch gesägt, das Ergebnis kann sich sehen lassen, wunderschön glatte Flächen, die die weiteren Arbeiten sehr erleichtern.
Im OG gehen die Maurerarbeiten weiter. Auf der Wiese vor der Scheune wurde der große Berg mit dem Aushub aus der Scheune abgefahren.
In der Kirche liegt ab jetzt ein Informationsfaltblatt zu unserem Scheunenbau zum Mitnehmen und Verteilen an alle interessierten Menschen.
Blick von oben, Innenmauern, Feldsteinsäge - 6.2.2019
Der Video-Journalist Michael Segebarth hat Drohnenbilder zur Verfügung gestellt, herzlichen Dank.
Innen gehen die Maurerarbeiten weiter, die Dämmung zwischen der alten und neuen Außenwand im EG (Westteil) ist geschüttet. Eine große Baubesprechung fand im OG statt. Alle Drehstützen im EG konnten entfernt werden und die Größe der Räume wird sichtbar. Im Mittel- und Ostteil der Scheune werden die Feldsteinfundamente, wie schon im Ostteil, abgesägt.
Balken eingesetzt, Aushub und Unterbeton - 30.1.2019
Die fehlenden Balken im Westteil der Scheune sind eingesetzt und alte Balken mit Laschen verstärkt. Im Gemeindeteil wurden neue Abstützungen eingebaut, der Boden ausgehoben und Unterbeton eingebracht.
Mittendrin war ein Video-Journalist vom Wirtschaftsfenster-MV (Minute 4:14ff.) da, der über unser Projekt im Auftrag des Wirtschaftsministeriums Schwerin einen Film herstellen will. Er wird noch zweimal kommen, besonders, wenn die Bohrungen für die Erdwärmesonden gemacht werden. Der Film und auch Bilder daraus werden uns zur Verfügung gestellt.
Abwasserschacht, Zimmermannsarbeiten - 23.1.2019
Der Abwasser wird längs zur Ostseite der Scheune ausgeführt und dort ist jetzt der Schacht gesetzt worden. Innen werden die Mauern fertiggestellt und die Zimmermänner beginnen mit dem Einsetzen der fehlenden Deckenbalken im Westteil der Scheune.
Mauern, Ringanker, Abwasserleitung - 17.1.2019
Die Mauern im Westteil der Scheune sind bis zur Geschoßdecke fertig. So kann der Ringanker gegossen werden. Die Armierungseisen kamen mit großem LKW. Fertig gemauert ist die große Trennwand zwischen dem Werkstatt/Wohnungsteil und dem Gemeindebereich. Im Flur ist der Fahrstuhlzugang deutlich zu sehen. Die Bodenplatte im Gemeindebereich kommt in den Blick und die Wasser- und Abwasserleitungen werden verlegt. Im Obergeschoss ist das sog. Metermaß angebracht, worauf sich alle weiteren Maße beziehen. Die Feldsteine werden auch in diesem Teil der Scheune gesägt werden müssen.
Fahrstuhlschacht und Arbeitsräume - 10.1.2019
Der Fahrstuhlschacht ist fast bis zur Geschoßdecke gemauert. Ebenso die Innenwände der Werkstatt- und Hausanschlußräume. Nach dem Gießen des Ringankers können die Deckenbalken auf die Wände abgelegt werden.
Hausausschuss - 2. Treffen am 7.1.2019
Am 10. Dezember 2018 tagte zum ersten Mal der "Hausausschuss". Er soll die Nutzungsbedingungen für den Saal und die drei Gruppenräume in der Pfarrscheune im Detail ausarbeiten. Fragen der Verwaltung, Reinigung, Erfassung der Energie- und Wasserverbräuche, Vermietung der beiden Wohnungen und Betriebskostenabrechnung gehören ebenso dazu, also alles, was zum Funktionieren der dann mal fertig gebauten Scheune nötig ist.
Dem "Hausausschuss" gehören die Pastorinnen Anke Kieseler und Uta Möhr, Gemeindepädagogin in Ausbildung Conny Buck, Kantor Andreas Hain, KGR Mitglieder Camilla Lohmann, Christian von Dorrien und Friedrich Heilmann an.
Förderung Geothermie bewilligt - 3.1.2019
Mit Schreiben vom 17.12.2018 wurden uns 33.400 Euro Förderung für die geplante Geothermie+Wärmepumpen-Heizung in der Scheune bewilligt. Die Kosten belaufen sich auf insgesamt 66.800 Euro, wovon die Hälfte vom Klimafonds des Landes Mecklenburg-Vorpommern übernommen wird. Die Pressemitteilung des Energieministeriums kann hier runtergeladen werden. Link zur epd-Meldung.
Die lange Bearbeitungsfrist liegt nicht beim Landesförderinstitut, sondern an unserer Antragsstellung, die im Laufe des Verfahrens geändert wurde. Als endlich alle neuen technischen Details geklärt waren, ging es ganz schnell.
Die andere Hälfte wird mit 10.000 Euro vom Klimaschutzfonds der Nordkirche, mit 5.000 Euro von der Umweltlotterie BINGO und der Rest mit Eigenmitteln finanziert.
Sandberg, Außen- und Innenwände - 21.12.2018
Der erste Teil des Aushubs aus der Scheune ist abgefahren worden. Damit ist für die Feiertage der Parkplatz wieder etwas größer, wenngleich bei Regen sehr matschig. Die Außenwände im Westteil der Scheune sind bis zur Ringankerhöhe Obergeschoss gewachsen und eine erste Zwischenwand Werkstatt/Lagerraum steht. Für die Außenwände werden mehrfach gedämmte Steine verwendet, damit wir eine gute passive Dämmung erhalten. In den Zwischenraum alte-neue Außenwand wird später Dämmstoff eingeblasen.
Über Weihnachten/Silvester ist Bauruhe.
Wände, Steine und Zimmermänner - 12.12.2018
Im Westteil der Scheune wachsen die Innenwände weiter. Der Streich-Deckenbalken am Westgiebel wurde entfernt, Steine für die Innenmauern geliefert und 13 Zimmermannslehrlinge (3. Lehrjahr) besichtigten mit ihrer Berufsschullehrerin die entkernte Scheune: "So ein freigelegtes Fachwerk und Holzbalken sieht man nicht oft."
OSPA-Fördergelder übergeben - 11.12.2018
Sie haben es spannend gemacht - und ein bisschen wie Weihnachten, wie sie sagten. Es war eine Überraschung, als Jana Mentz (Bilder) von der OSPA-Stiftung und Filialleiter Fabian Pieper, OSPA Lütten Klein, bei einem als "Besichtigung" anberaumten Termin den Förderbescheid übergaben. Pastorin Anke Kieseler und der Leiter des Scheunenausschusses unserer Gemeinde, Friedrich Heilmann, nahmen den Bescheid über 15.000 Euro hocherfreut und mit großem Dank entgegen. Damit ist der Erhalt der Fachwerkwand auch finanziell gesichert.
Feuchtigkeitssperre, Innenmauern - 5. Dezember 2018
Eine große Steinelieferung stand übers Wochenende schon auf dem Hof und nun wachsen die ersten Innenwände im Westteil der Scheune. Der Abstand zur Außenwand soll ca. 8 cm betragen, bei der Welligkeit der Außenwand nicht so einfach. Es ist ja eine Scheune gewesen, kein feines Wohnhaus. Vorher wurde die Sperrschicht ca. 1 Meter hoch aufgetragen, was nach dem Schneiden der Feldsteine zu 100% gelungen ist, Risse und andere undichte Stellen sind nicht zu befürchten.
Steinsäge und winterfest machen - 28.11.2018
Nun gibt es endlich ein Bild von der Säge in Aktion und noch mal fertige egalisierte Wände. Der Westteil der Scheune wird dicht gemacht, damit dort auch bei niedrigen Temperaturen weiter gebaut werden kann.
Schneiden der Feldsteinfundamente - 22.11.2018
Beim Freilegen der Feldsteinfundamente traten große Unebenheiten zutage. Manche Steine reichten bis zu 20 cm in die Scheune hinein. Die Bodenplatte wurde bis ans Fundament heran gegossen, aber um die Innenwände stellen zu können, mußten diese Steine abgesägt werden. Sie sitzen auch nicht so fest im Mauerwerk, dass sie einfach überbaut werden konnten. Im Ergebnis gibt es eine sehr glatte Oberfläche, die nun auch leicht mit der Feuchtigkeitssperre überzogen werden kann. Auch dafür wird die Wand oberhalb des Fundaments und der Rollschicht egalisiert, d.h. geglättet.
Reinigung des Westgiebels - 17.11.2018
Der Giebel der Scheune war dicht mit Efeu bewachsen, der im Februar 2018 beseitigt worden war. Die Wurzelreste mußten nun auch noch mühsam per Hand abgekratzt werden, was wir im Rahmen des Herbstputzes erledigten. Die Steine sollten so wenig wie möglich beschädigt werden. Manche Fugen sind tief ausgewaschen oder von Wurzeln herausgesprengt. Diese Schäden werden bei der Fassadensanierung behoben.
Bodenplatte im Westteil fertig - 13.11.2018
Nachdem die Vorarbeiten abgschlossen waren, konnte die Betonpumpe kommen und der erste teil der Bodenplatte wurde gegossen. Deutlich sind die Aussparungen für den "Stangenwald" zu sehen. Wenn die tragenden Wände hochgezogen sind, werden die Löcher verschlossen.
Fahrstuhlschacht, Bodenplatte im Westteil - 7.11.2018
Der Fahrstuhlschacht ist nach der Fachwerkwand das zweite Element mit Gründung. Ebenso werden die ersten Abwasserleitungen und Leerrohre für die spätere Geothermieheizung verlegt. Aus statischen Gründen, da die Scheune nun sehr weit entkernt ist, wird zuerst die Bodenplatte im Westteil fertiggestellt. Sobald sie fertig ist, werden die ersten Mauern hochgezogen, um dem Gebäude wieder die nötige Querstabilität zu geben.
Treppe, Vermessung, Aushub, Nordwand - 23.10.2018
Das Obergeschoss ist nicht mehr über die Treppe erreichbar, die Betondecken des früheren Heizungsraums sind abgerissen und jetzt ist auch freier Durchblick im Erdgeschoss von Giebel zu Giebel.An der Außenwand (Straßenseite) werden große Wasserschäden am Mauerwerk beseitigt, die Fugen waren tief ausgewaschen.
Baustellenbesichtigung - 14.10.2018

Nach dem Gottesdienst am Sonntag, 14. Oktober 2018, wurde zur Baustellenbesichtigung eingeladen. In die Scheune konnte nur durch die offenen Türen reingeschaut werden - aber auch dieser Anblick ist schon imposant. An den anderen Bildern ist zu sehen, dass eine Innenbesichtigung zurzeit gar nicht möglich ist. Die Besichtigungen werden noch öfter angeboten.
Abriss früherer Heizungsraum, Schornsteinfundament - 18.10.2018
Jetzt ist der Durchbruch geschafft. Der frühere Heizungsraum war mit einer Stahlbetondecke und sehr festem Fundament versehen. Und der Schornstein hatte ein bestimmt 10 Tonnen schweres Fundament aus einem Stück - Beton hat es früher genügend gegeben.
Abriß Beton, Fachwerkwand innen - 11.10.2018
Der frühere Eingang zum Abschiedsraum hatte ein Betonfundament. Die Decke über der Heizung ist ebenso aus Beton gebaut worden.
Die Fachwerkwand wird nun schon unterfangen und z.T. wieder ausgemauert. Wir warten auf die Zertifizierung des Aushubs in der Scheune, damit er abtransportiert und die Bodenplatte gegossen werden kann.
Maurerarbeiten - 4.10.2018
Etliche Öffnungen müssen fach- und denkmalgerecht verschlossen, d.h. zugemauert werden. Steine sind vom Abbruch genügend vorhanden, sodass die Außenhaut weiterhin einheitlich, wenngleich an manchen Stellen neu aussieht.
Feldsteinfundamente, Absteifung OG, Putzspiegel - 26.9.2018
Im Obergeschoss ist eine Absteifung erfolgt, damit die Metallstützen entfernt werden können. Dort wird der Aufzugsschacht entstehen. Im "Saal" wird der Fußboden entfernt, die Kopfsteinpflastersteine bei uns zwischengelagert für spätere Verwendung. Im westflügel mußten umfangreiche Abstützungen eingefügt werden, um die Mauern abreißen zu können. An der Nordseite ist der Putzspiegel an einer früheren angelegt worden.
BINGO-Fördermittel bewilligt - 25.9.2018

Mit schreiben vom 25.9.2018 wurden uns 5.000 Euro von der BINGO-Umweltlotterie bewillgt: "Bewilligung einer Zuwendung aus Erträgen der LotterieBINGO! Die Umweltlotterie in Mecklenburg-Vorpommern - Pfarrscheune - Kommunikations- und Begegnungszentrum mit C02-neutraler Heizung ein Festbetrag von 5.000,00 € gewährt."
Damit können wir die geplante Geothermie+Wärmepumpen-Heizung ko-finanzieren. Herzlichen Dank, das hilft uns sehr.
Fachwerk Abriss, Baubesprechung - 21.9.2018
Inzwischen liegen etliche Balken aus der Scheune auf dem Hof. Wenn es dafür Interessenten gibt, können sie gegen eine Spende geholt werden. Es kommt nächste Woche noch etliches Holz dazu. Bitte per email melden bei Friedrich Heilmann und einen Termin vereinbaren.
Aus aktuellem Anlass mußte es eine Besprechnung geben, da die Wände der früheren Wohnungen wenig bis gar nicht mit einem Fundament versehen wurden. Daher müssen nun die Deckenbalken extra abgefangen werden. Die Fotos zeigen uns allerdings im "Saal" und draußen.
Für den exakten Aufbau wurden Meterstriche in der Scheune angebracht.
Inschrift, Öffnungen alt und neu, Abriss - 20.9.2018
In der Türleibung findet sich die Inschrift von 1910. Die Öffnungen (Fenster und Türen) der Scheune werden nach und nach fertig. Der Abriss geht weiter, doppelschalige Betondecke, Holzkonstruktion und Kennzeichnung der Fachwerkbalken, die ausgebaut werden können.
Stilleben, großer Schornstein, Treppe - 13.9.2018
Der große Schornstein, der bisher für die Heizungen für die Wohnungen (früher Kohle, dann Gas) da war, wird nun abgerissen. Das sind viele Kubikmeter Steine. Auch die Treppe zum Wohnungseingang ist nun weg. An der Nordseite (Straße) waren die Fenster z.T. zugemauert und werden jetzt wieder aufgemacht.
Abriss, Aufbau und "Innenausschuss" - 7.9.2018
Wieder wurde beim Abriss eine Zeitung gefunden (ND vom 25.8.1977). Die Dämmung aus der Geschossdecke der ehemaligen Wohnungen ist komplett entfernt. Im OG wurde einer von zwei Ständerbalken wieder eingebaut, der beim Bau der Wohnungen abgesägt worden war. Der zweite folgt demnächst. Neue Fensteröffnungen sind fertig. Der Inneneinrichtungsauschuss hat erste Leuchtmittel bemustert, hier eine LED-Flächenlampe, die sich natürlich dimmen lässt.
Zeitung von 1975 beim Abriss der Wohnungen gefunden - 31.8.2018
Die Abrissarbeiten im Innern gehen weiter, aber auch die Maurerarbeiten an den Fensteröffnungen. Neu dazu gekommen sind die Zimmermänner für den Wiederaufbau erster Holzträger.
Info-Abend zum Ausbau der Pfarrscheune - 30.8.2018
Für Donnerstagabend, 30.8.2018, hatten wir die Kommunalpolitikerinnen und Kommunalpolitiker, Vereine, die Grundschule und etliche Firmen aus Elmenhorst/Lichtenhagen zu einer Baustellenbesichtigung mit anschließendem Grillen und Filmabend eingeladen. In guter Runde trafen wir uns und bei etwas verhangenem Himmel war es gerade noch hell genug, um einen Blick in die Scheune zu werfen. Der künftige große Gemeindesaal zeichnet sich in Konturen schon ab, besonders beeindruckt waren die Gäste von der Weite im Obergeschoß: "So ein Haus sieht außen kleiner aus als es innen ist. Das wird wunderschön" - sagte jemand - klick hier.
Gute Gespräche zwischen den Teilnehmenden, neue Kontakte und das gemeinsame Essen "würzten" den Abend. Der humorvolle Film "Willkommen bei den Hartmanns" im "Sommerkino" ließ den Abend sehr schön ausklingen.
Dank an alle, die gekommen sind und an die Helferinnen und Helfer, die uns den Abend genießen ließen.
Gerüst mit Netz und Abriss EG, 24.8.2018
Das Gerüst auf der Straßenseite ist jetzt insgesamt mit einem Netz bespannt, um vorbeifahrende Fahrzeige zu schützen, falls mal was daneben fällt. Außerdem sichert es die Baustelle ein wenig vor unbefugtem Zutritt.
Im Erdgeschoss sind die Fachwerkwände freigelegt und die Größe des zukünftigen Saales wird deutlich.
freier Blick im Obergeschoss quer durch die Scheune - 16. August 2018
Nach dem Abriß der Ausfachungen der Fachwerkwand im Obergeschoss ist der Blick von Giebel zu Giebel frei geworden: "Was ist die Scheune schön und groß."
Abriss und Einsetzen erster Fensterstürze - 13. August 2018
Die Abrissarbeiten gehen weiter, parallel dazu sind die Fensteröffnungen hergestellt und erste Stürze eingebaut worden.
Fensteröffnungen, Abriss, Baubesprechung - 7. August 2018
Die Scheune sieht jetzt auch außen schon sehr verändert aus. Im Obergeschoss sind die neuen Fensteröffnungen sichtbar. Innen ergibt sich eine große Weite, da fast alle Mauern der bisherigen Wohnungen abgerissen sind.
Jeden Dienstag findet vormittags eine Baubesprechung statt, bei der alle aktuellen Gewerke, Architekt Graewe und Friedrich Heilmann (Kirchengemeinde) vertreten sind. Auf dem Bild hier nur die Herren Boyke und Graewe.
Abriss Wohnungen Obergeschoss - 3. August 2018
Außen wird durch Firma Himmelreich das gerüst weiter komplettiert. Innen geht der Abriss weiter. Oben sind viele Innenwände verschwunden, das Dach wird - nun gut sichtbar - abgestützt.
ACHTUNG - gilt immer: Betreten der Baustelle verboten!
Aus aktuellem Anlass müssen wir leider auf eine Selbstverständlichkeit hinweisen: Das Betreten der Baustelle ist grundsätzlich verboten. Bitte achten Sie selbst darauf, aber auch, falls sich andere Personen innerhalb des Bauzauns aufhalten, die nicht zu den Baufirmen oder der Bauleitung gehören.
Es ist sehr verständlich, in die Scheune hineinschauen zu wollen. Dafür werden hier die Bilder und immer mal Bauführungen angeboten, wozu vorher eine gut gesicherte Baustelle hergestellt wird.
Abriß der Innenwände - 31. Juli 2018
Die Innenwände der bisherigen Wohnungen werden im Obergeschoss abgerissen. Dafür mußte das Dach abgefangen werden, da es mit den Stützen auf den Wänden auflag. Im Untergeschoß finden ebenfalls Abrissarbeiten statt, das erste Fenster wurde herausgenommen.
Baustellenführung beim SommerCafé - 26. Juli 2018
Beim SommerCafé am Donnerstag wurde gegen 16.30 Uhr eine erste Baustellenführung an und in der Scheune angeboten. Viele Gäste nahmen das Angebot an und informierten sich über den Fortgang und Zeitplan der Arbeiten. Solche Führungen werden immer wieder angeboten, damit sich jede und jeder ein Bild von den Arbeiten machen kann.
Am Beginn der Führung wurde deutlich auf die Bedingungen hingewiesen: "Auf eigene Gefahr" und "es ist eine Baustelle, bitte auf jeden Schritt achten und nur dorthin gehen, wo man es sich zutraut". Und natürlich wurden nur Räume und Wege gezeigt, die keine Gefahren aufwiesen.
Der Abriß innen geht vorwärts - 23. Juli 2018
Alle nichttragenden Decken und Wände sollen aus der Scheune entfernt werden - so ist der Auftrag an die Abrißfirma. Von oben nach unten und manchmal auch nur unten, wie im Teil der früheren Werkstatt und Abstellräume.
Photovoltaikanlage stillgelegt - 16.7.2018
Nachdem am Montag, 9.7.2018, der Gas- und Elektroanschluß der Scheune stillgelegt wurde, folgte eine Woche später die Photovoltaikanlage. Seit 2006 produziert sie Strom, der komplett ins Stromnetz eingespeist wird. Die Wechselrichter sind demontiert, die Module auf dem Dach wurden elektrisch voneinander getrennt. Sie werden abgebaut, wenn die Dachsanierung beginnt und nach Abschluß wieder montiert.
Förderschild aufgestellt am 13. Juli 2018
Am 15. Mai 2018 bekamen wird den gültigen Fördermittelbescheid, Ende Juni wurde uns das Förderschild überreicht mit der Maßgabe, es gut sichtbar an der Baustelle aufzustellen. Dies ist nun erfolgt. Es ist nur A3 groß, aber direkt an der Haupteinfahrt ist es gut zu sehen.
Beginn des Abrisses innen, 10.7.2018
Dienstag, 10. Juli 2018, fingen die ersten Arbeiten in der Scheune an. Die Abrissfirma baut von oben nach unten alle nicht-tragenden Teile zurück, Wände, Decken, Dämmstoffe. Ab Mittwoch werden Container für die verschiedenen Materialien auf dem Hof stehen.
Bauzaun steht - 9. Juli 2018 - der Bau beginnt
Dreiviertel um die Scheune steht der Bauzaun, nur auf der Straßenseite natürlich nicht. Die Bäume sind geschützt, Baustrom steht zur Verfügung, Elektro- und Gasanschluß sind stillgelegt.
Parkmöglichkeiten gibt es noch eingeschränkt auf der Wiese, für die Bewohnerinnen und Bewohner des Pfarrhauses steht die hintere Einfahrt zur Verfügung. Alle Gäste, die mit einem Auto kommen müssen, sind herzlich gebeten, auf die Parkplätze im Ortskern auszuweichen.
Bauanlauf und Baustart - endlich und wir freuen uns sehr
Am 27. Juni 2018 gab es die erste umfangreiche Baubesprechung mit Firma Boyke an und in der Scheune. Nach Absprache mit noch weiteren beteiligten Firmen steht nun der Baustart mit Aufbau des Bauzauns und ersten Arbeiten fest: Montag, 9. Juli 2018.
Der Bauzaun wird in ca. 7 Meter Abstand zum jetzigen Gerüst 3/4 um die Scheune (außer Straßenseite) gesetzt, sodass eine direkte Durchfahrt zum Pfarrhaus dann nicht mehr möglich ist. Dafür ist auf der Westseite der Scheune beim großen Nußbaum eine größere Öffnung in der Feldsteinmauer. Auch der Parkplatz neben dem Toilettencontainer wird dann eingezäunt sein, die Toiletten bleiben frei zugänglich. Solange auf der Wiese noch Platz ist, kann dort geparkt werden. Nach und nach werden die Bauarbeiten mehr Platz benötigen, sodass sich alle bitte darauf einstellen mögen, außerhalb des Pfarrgeländes zu parken.
Fördergelder - Schild überreicht
Am Donnerstag, 28. Juni 2018, besichtigte Frau Wierzchowski (Landkreis Rostock, Amt für Kreisentwicklung, Zentrale Fördermittelstelle) unsere Pfarrscheune, um den Einsatz der zugesagten Mittel zu begleiten. Dabei übergab sie uns das Schild, das gut sichtbar an der Baustelle angebracht werden soll. Pastorin Anke Kieseler nahm es erfreut entgegen.
Finanzierung für den 1. Bauabschnitt komplett, 15.5.2018
Seit Ende März haben wir das Gerüst an der Scheune, weil damit der nötige Artenschutz realisiert werden konnte. 360.000 Euro EU-Fördergelder sind vom Land Mecklenburg-Vorpommern zugesagt. Zu unserer großen Freude wurden uns auch 300.000 Euro vom Deutschen Hilfswerk genehmigt. Damit ist, zusammen mit unseren Eigenmitteln und der Kirchenkreisförderung (310.000 Euro), der 1. Bauabschnitt gut finanziert. Der Scheunenausschuss plant zusammen mit Architekt Graewe engagiert weiter.
Leider hatte die 1. Ausschreibung keinen Erfolg und wir suchen weiter die Rohbaufirmen, die für den Baubeginn nötig sind. Sie werden es bemerken, wenn es richtig los geht.
Für den weiteren Ausbau und die Inneneinrichtung der Scheune wird noch viel Geld benötigt (400.000 Euro), sodass wir gern die Spendenziegelaktion zum Gemeindefest am 23. Juni wiederholen. Der Förderverein wird wie im März den Scheunenstempel und 27 Rohziegel zur Hand haben und mit 100 Euro sind Sie dabei. Daneben gibt es viele andere kleine Dinge, die der Baukasse zugutekommen.
Ausschreibung erfolgreich, 23.5.2018

Am Mittwoch, 23.5.2018, konnten wir die Angebote zur neuerlichen Ausschreibung "Rohbau" öffnen und auflisten. Wir werden im Juni den echten Baubeginn haben können, wenn alles gut läuft. Von der Baustelleneinrichtung über Abbruch, Maurerarbeiten, Bautischler bis zu Dachdeckerarbeiten war alles dabei. Damit sind die Arbeiten für die nächsten Monate möglich. Wunderbar.
Spendenziegel fertig gebrannt, 17.5.2018

Am 24. März 2018 feierten wir ein großes Scheunenfest, bei dem auch die "Spendenziegel" erworben werden konnten. Nach Lagerung und Trocknung wurden sie in der "Neue Ziegelei Manufaktur Glindow" gebrannt. Seit dem 17. Mai 2018 liegen sie sicher verwahrt in Lichtenhagen und warten auf ihren "Einsatz", d.h. den Bau der Spendenziegelwand. Im März waren es 27 Ziegel á 100 Euro und noch einmal so viele können es am 23. Juni 2018 beim Gemeindefest werden. Die Aktion wird vom Förderverein noch einmal durchgeführt.
erneute Ausschreibung läuft bis 23. 5. 2018
Die erste Ausschreibung der Rohbaugewerke war nur teilweise erfolgreich. Für manche Arbeiten wie Abbruch und Maurer erhielten wir keine Angebote. Der Baumarkt ist durch den späten Winter in Verzug. Im April wurden daraufhin weitere Firmen kontaktiert und etliche konnten einen möglichen Baubeginn im Juni möglich machen. daraufhin erfolgte eine "beschränkte Ausschreibung", die bis zum 23. Mai 2018 läuft. Wir hoffen sehr, dass sich dann die nötigen Gewerke mit akzeptablen Angeboten einstellen.
unser "Scheunenausschuss"
Für die Baubegleitung arbeitet seit 2015 der "Scheunenausschuss" in unserer Gemeinde. Er wurde vom Kirchengemeinderat berufen und arbeitet eng mit Architekt Sebastian Graewe zusammen. Seit September 2017 ist die Arbeit stark intensiviert worden, da erste Zusagen von Fördermitteln in Aussicht gestellt wurden. Mit einem 14-tägigen Sitzungsrhytmus können alle nötigen Entscheidungen zeitnah besprochen und dem KGR zur Entscheidung vorgelegt werden.
Ausschussmitglieder sind: Pastorin Anke Kieseler, Ulrike Küster, Dr. Christian von Dorrien, Hans-Joachim Engel, Friedrich Heilmann (Leitung), Knut Heller*, Dr. Frank Mohr, Hans Pfennig*, Wolfgang Schultz, Karl-Albrecht Stuhr*, Jörg Wulff*, für die Kirchengemeinde Lütten Klein Steffen Jahncke.
Mit Hans-Joachim Engel ist der Vorsitzende des Bauausschusses der Kirchengemeinde mit dabei, ebenso weitere Mitglieder *), womit die Bauorganisation gut miteinander "verzahnt" ist.
Inneneinrichtungsausschuss gebildet, 17. April 2018
Für die Baubegleitung gibt es den "Scheunenausschuss", dem insgesamt zwölf Mitglieder angehören. Zusätzlich wurde nun ein Ausschuss für die Inneneinrichtung der Scheune gebildet, der sich am Dienstag, 17. April 2018 zum ersten Mal traf. In diesem Ausschuss werden das Mobiliar, die Auswahl der Lampen, Gestaltung der Räume usw. beraten. Mitglieder im sog. "Innenausschuss" sind die hauptamtlichen Mitarbeiterinnen und Mitarbeiter Anke Kieseler, Conny Buck, Christel Paepcke und Andreas Hain. Aus unserer Gemeinde wurden für die Mitarbeit gewonnen: Camilla Lohmann, Elke Heller, Brigitte Kollmorgen. Christel Huhndorf ist für Lütten Klein dabei. Aus dem Scheunenausschuss arbeiten mit: Ulrike Küster, Wolfgang Schultz und Friedrich Heilmann, womit eine gute Zusammenarbeit der beiden Ausschüsse gewährleistet ist.
Bauvorbereitung - Ausschreibungen

Auf unserer Internetseite werden die aktuellen Ausschreibungen veröffentlicht, da wir Fördergelder bekommen und die Vergabe von Aufträgen auf diese Art vorbereitet werden muss. Die letzte Ausschreibung "Rohbau" endete am 9. April 2018 und es gab in manchen Gewerken keine Bewerbung. Dies betrifft besonders die Abbruch- und Maurerarbeiten, die zuerst getan müssen. Die Firmen sind durch den lang anhaltenden Spätwinter sehr in Verzug mit früheren Aufträgen und konnten uns jetzt keine Angebote unterbreiten. Daher werden wir nun noch einmal ausschreiben unter Einhaltung aller Regeln und hoffen sehr, dann Firmen für die Arbeiten zu finden. Bis in den Mai hinein wird an und in der Scheune deshalb nicht gearbeitet werden.
Jedoch gehen alle unsere Planungen gut voran und wir sind weiter im Schwung des großen Scheunenfestes am 24. März. Von der Verzögerung lassen wir uns nicht verdrießen.
Artenschutz und Baugerüst komplett, 28.3.2018
Das Gerüst wurde in den unteren zwei Ebenen komplettiert, damit der Artenschutzbeauftragte an alle offenen Stellen der Scheune rankommt. Das Brüten von diversen Vogel- und Fledermausarten soll verhindert werden, da wir sonst nicht bauen können. Als Sofortersatz hat er insgesamt 8 Bruthilfen für Fledermäuse und Höhlenbrüter in angrenzenden Bäumen installiert.
In der Scheune konnte eine intakte Bretterwand für eine Spende abgebaut und weggegeben werden.
Baubeginn - Gerüstbau an der Scheune 27.3.2018
Nach erfolgreicher Ausschreibung und Auswahl der Gerüstbaufirma konnte der Auftrag erteilt werden. Firma "Himmelreich" baut das Gerüst rund um die Scheune, zuerst nur die unteren Ebenen, später noch bis zur Dachkante.
Weitere Fotos folgen ...
So wunderschön war unser "Scheunenfest" am 24.3.2018
An die 200 Menschen besuchten unser großes "Scheunenfest" mit dem wir unseren Baubeginn zur Rekonstruktion feierten. Die Versteigerung und die Spendenziegel bildeten den Höhepunkt, Kaffee und Kuchen schmeckten bei angenehmen Temperaturen. Mit den Erlösen von Kaffee und Kuchen, Spendenziegeln und Versteigerung kamen 4.627 Euro für die Gemeindebaukasse zusammen - herzlichen Dank, ein tolles Ergebnis.
Scheunenfest am Sonnabend, 24. März 2018 von 15-18 Uhr
Wir feiern am Nachmittag ab 15 Uhr ein großes „Scheunenfest“ und alle Scheunentüren stehen offen. Sie können in jeden Winkel schauen, die Größe und Weite genießen, Grundrisszeichnungen ansehen und sich von sachkundigen Menschen führen lassen. Natürlich gibt es auch Kaffee und Kuchen, Musik und Spiel.
Für die Finanzierung sind wir auf kleine und großzügige Spenden angewiesen. Eine erste Aktion wird um 16.15 Uhr eine Versteigerung von Raritäten sein, die wir in der Scheune gefunden haben. Scheunen-Fan-Artikel von 2 … 20 Euro sind ebenfalls da. Sie dürfen gespannt sein.
Und wir beginnen mit „Ein Ziegel für unsere Scheune“. Bei einer Spende ab 100 Euro können Sie ein Symbol in einen frischen Ziegel stempeln, der dann gebrannt und in die rekonstruierte Scheune sichtbar eingebaut wird.
Impressionen - Ausräumen der Scheune
Trotz anstrengender Arbeit waren wir bis zum Schluß guter Dinge ...
Ausräumen der Scheune am 10. März 2018
Am Sonnabend, 10. März zwischen 8 und 17 Uhr haben wir die Scheune (fast) komplett ausgeräumt. Zum Frühstück waren wir 32 Personen, andere kamen noch im Laufe des Tages. Herzlichen Dank für die wunderbare Beteiligung und Mitarbeit.Damit sind alle Voraussetzungen erfüllt, dass wir unser Scheunenfest am 24. März von 15-18 Uhr feiern können und in der Woche darauf der Baustart erfolgt.
Ausbau der Pfarrscheune zu einem Kommunikations- und Begegnungszentrum
Begegnungszentrum in unserer Kommune
"Dem Miteinander Raum geben"
Aus dem Nutzungskonzept:
„neue Perspektiven eröffnen für ein gutes Miteinander einer aktiven Bürgerschaft, im Interesse einer sozialen Daseinsvorsorge in einem liebens- und lebenswerten Dorf“
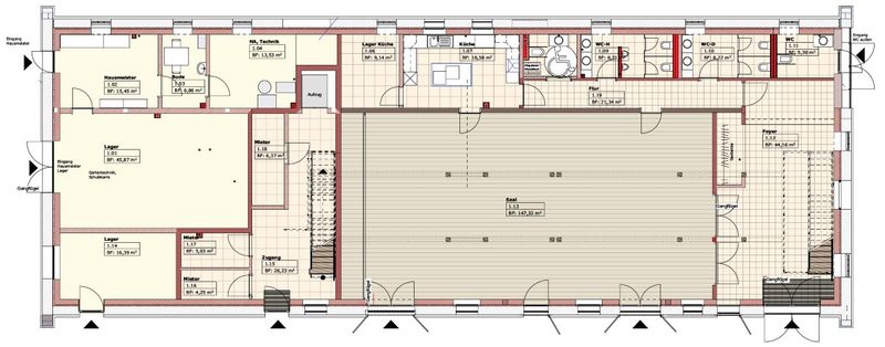
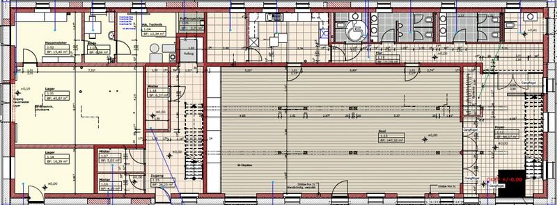
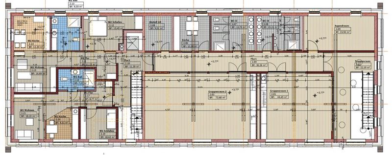
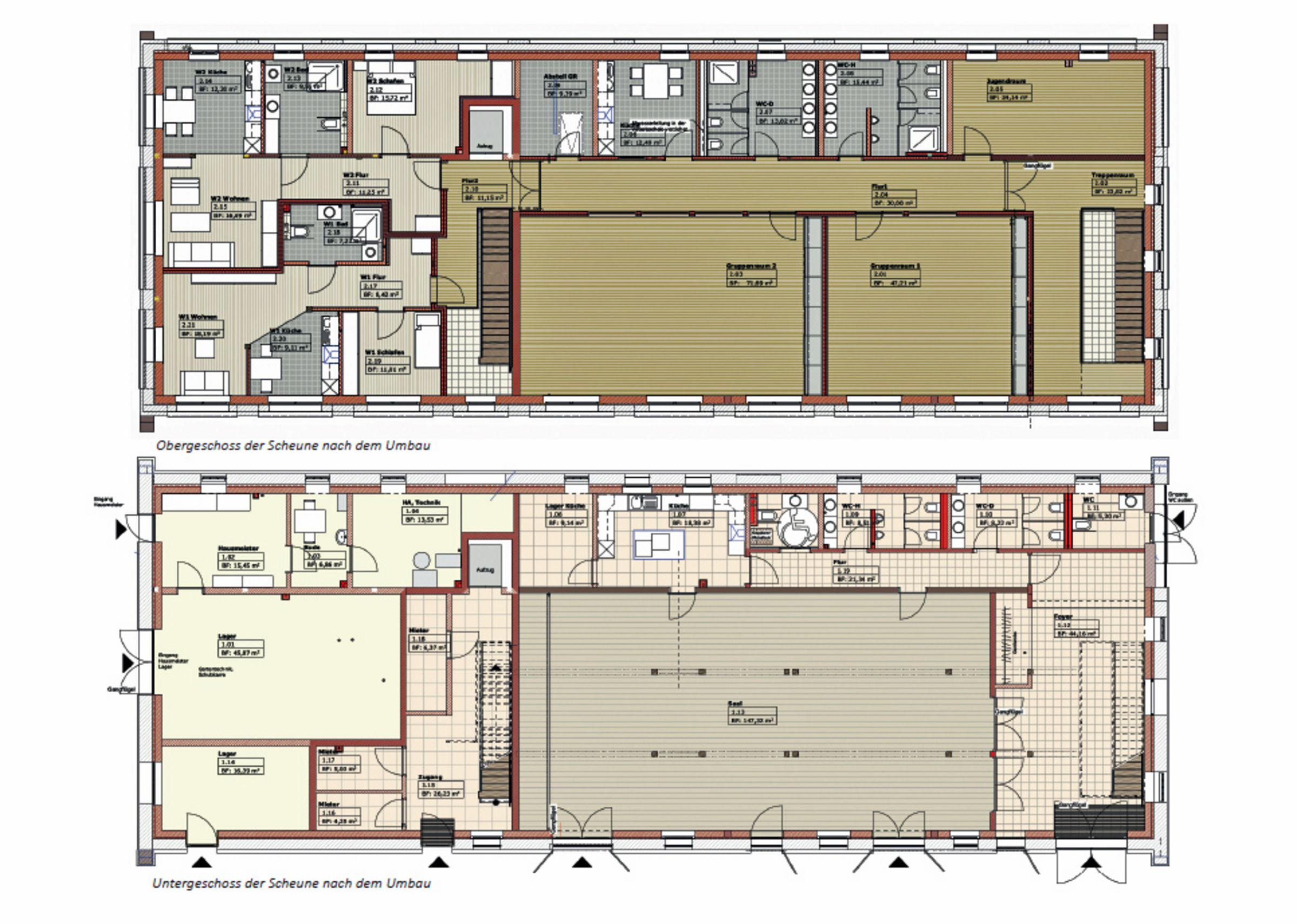
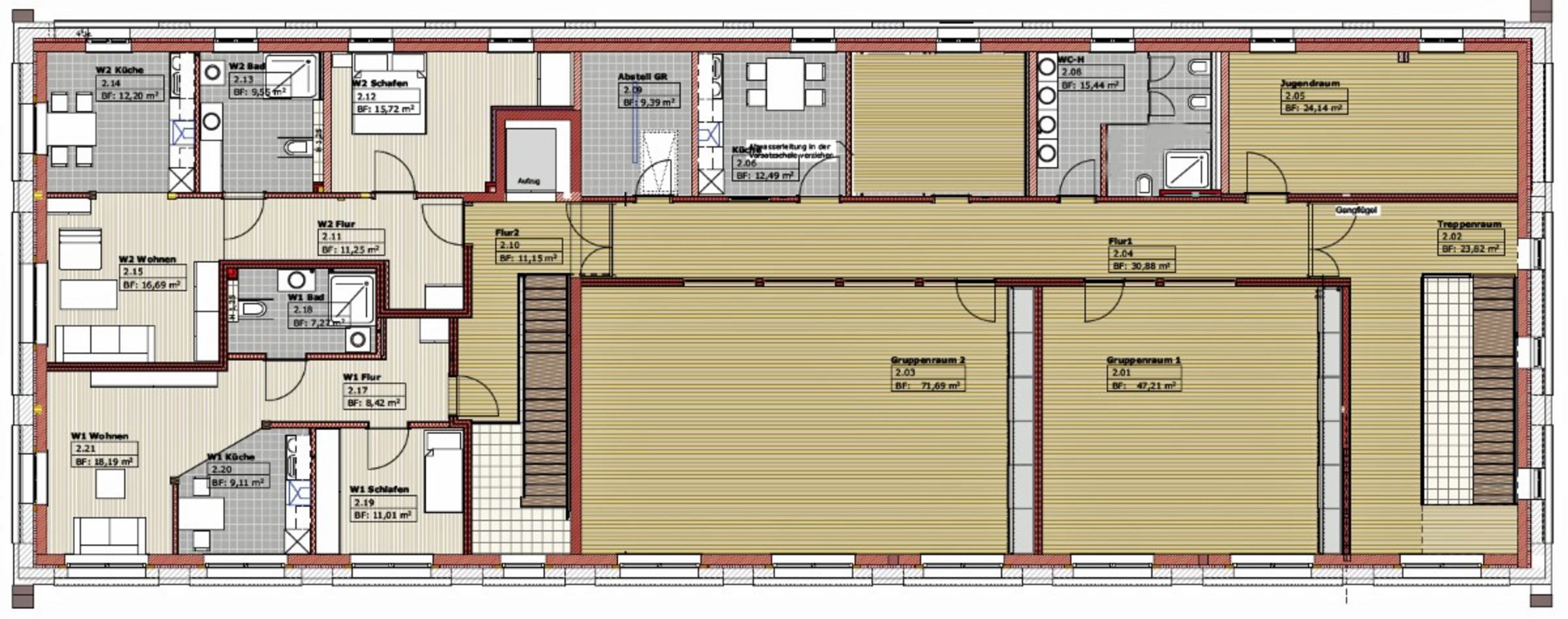
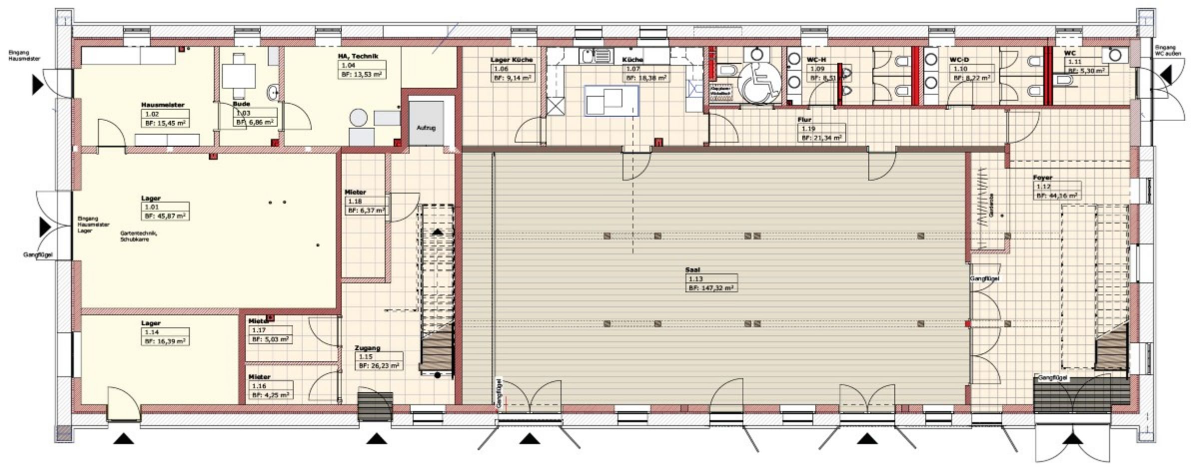
- Räume in der Scheune stehen offen für vielfältige Nutzung
- großer Saal mit 150 m²
- drei unterschiedlich große Gruppenräume 25 – 70 m²
- wöchentliche, monatliche und einzelne Veranstaltungen
- mit allen Gruppen und Kreisen in den Gemeinden
- mit Chor, Gospelchor, Jugendchor
- mit der Grundschule, mit Vereinen aus Lichtenhagen
- regionale kirchenmusikalische Projekte mit Chören aus Rostock und Umgebung Café im Foyer – ThemenCafé: Kuchen aus Omas Zeiten, SammeltassenCafé, Rund um den Apfel
- Lesungen, Lesestube und öffentliches Bücherregal „Geben und Nehmen“
- private Nutzung möglich
- Welt-Laden, Produkte des fairen Handels
- Treffpunkt Filmabend, Reiseberichte von Gemeindereisen
- Koch- und Backfest, Kartoffelfest
- Pflanzentauschbörse
- Kooperation mit dem Förderverein zur Erhaltung des Kirchenensembles Lichtenhagen e.V., Lichtenhäger Findlingsgarten e.V., Kulturverein Elmenhorst/Lichtenhagen e.V., Förderverein Denkmale Elmenhorst/Lichtenhagen e.V., Schulverein
- Grundschule Lichtenhagen: Nutzung des Saales als Schul-Aula, Arbeit mit Kindern und Jugendlichen, Projekte in Eigenverantwortung der Schule
- drahtloses Internet „WLAN für alle“
- Ladestation für e-Bikes
- barrierefrei, rollator- und rollstuhlgerecht, Hörschleife, automatische Eingangstüren
- helle und offene Räume oben klimagerecht, sehr gute Energiebilanz
- Artenschutz einhalten, Ersatzmaßnahmen
Gemeindeabend zum Umbau der Scheune
Am Donnerstag, 8. März 2018, fand ein umfangreicher Informationsabend zum Ausbau der Pfarrscheune in der Kirche statt. Pastorin Anke Kieseler, Architekt Sebastian Graewe und der Leiter des Scheunenausschusses, Friedrich Heilmann, stellten das Nutzungskonzept, die Grundrisse und viele Details vor. Ausführlich wurde zum Tag der "Offenen Scheune" am 24. März 2018 von 15-18 Uhr eingeladen.
sichtbare Bewegung auf dem Pfarrgelände
Am Montag, 5. März 2018, wurden die beiden Mietcontainer auf dem Pfarrhof aufgestellt, die während der Bauarbeiten als Lager für die Pfarrhausmieter und den Friedhofsmitarbeiter dienen. Am 10. März soll die Scheune leer geräumt werden. Herzliche Einladung.
Die ersten beiden Ausschreibungen sind veröffentlicht, wenn die Firmen den Zuschlag erhalten, kann es losgehen.
Bauvorbereitung
Nach langer Vorbereitungszeit sollen die Bauarbeiten Anfang April beginnen. Zuerst wird ein Baugerüst rings um die Scheune aufgestellt, die Ausschreibung dazu ist am 1. März 2018 rausgegangen.
Vorbereitende Arbeiten sind noch nötig, um Baufreiheit zu schaffen.
- Am Sonnabend, 10. März zwischen 8 und 17 Uhr wollen wir die Scheune komplett beräumen. Herzliche Einladung, sich kürzer oder länger in dieser genannten Zeit zu beteiligen.
- Am Sonnabend, 24. März von 15-18 Uhr feiern wir die "offene Scheune", die dann leer sein wird und uns in alle Ecken schauen lässt. Auch dazu eine herzliche Einladung.
Hier ist ein Faltblatt (pdf) mit weiteren Information, wie es dem Führjahrsgemeindebrief beigelegen hat.
Ausbau der Pfarrscheune
Die Kirchengemeinde Lichtenhagen Dorf plant, ihre denkmalgeschützte Pfarrscheune zu einem Kommunikations- und Begegnungszentrum auszubauen. Es sollen im Erdgeschoss der Scheune ein großer Gemeinde- und Veranstaltungsraum und im Obergeschoss verschiedene Gruppenräume entstehen. Alle Räume sollen so ausgebaut werden, dass Stufen und Treppen in Zukunft niemanden mehr vom Veranstaltungen ausschließen, sondern für alle Menschen barrierefrei zu erreichen sind. Gleichzeitig sollen die Wohnungen saniert und so umgebaut werden, dass auch künftig auf dem Pfarrhof gewohnt werden kann.
Alle sind willkommen, unabhängig von Alter, Geschlecht, Konfession und Nationalität. Es soll ein Gebäude entstehen, in dem Menschen gemeinsam Zeit verbringen können. Es ist geplant, den jungen Menschen einen Raum zur Verfügung zu stellen, in dem Projekte in Eigenverantwortung entwickelt werden können und die Möglichkeit entsteht, auch überregional mit anderen Jugendgruppen zusammenzuarbeiten.
Die Lichtenhäger Kirchengemeinde bittet Sie um Ihre Unterstützung. Helfen Sie mit, unser Projekt zu verwirklichen!




















































































































































































































































































































































































































































































































































































































































































































































































































































































































































































































































































































































































































































































































































































