Bauprojekt Pfarrscheune

Liebe Gemeindemitglieder,
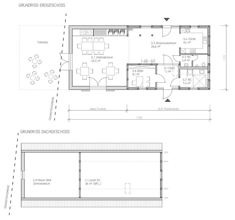
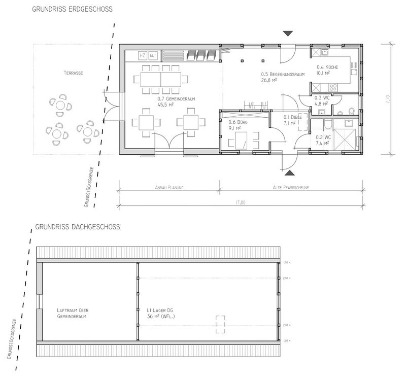
als Kirchengemeinderat planen wir die Pfarrscheune umzubauen.
Ziel ist der Erhalt der Scheune und ein Ausbau für:
- einen Gemeinderaum, der nicht nur Gruppen und Veranstaltungen der Kirchengemeinde neuen Raum geben soll, sondern auch Initiativen aus den Ortsteilen Wieck, Ladebow und Eldena,
- einen Büroraum,
- Sanitärräume für Veranstaltungen im Pfarrgarten.
Das Ingenieurbüro Börrnert wurde mit der Planung beauftragt.

Bauprojekt Nebengebäude
Mit dem Ausbau der Scheune entfallen der Lagerraum für die Außenmöbel der Kirchengemeinde und die Abstellräume für die Pfarrhausmieter.
Deshalb bauen wir gerade ein kleines Nebengebäude aus Holz östlich des Pfarrhauses. (Siehe Bild)
Daneben bleibt Platz für einen einfachen Fahrradschuppen.
Mittlerweile haben die Bauarbeiten an dem Schuppen begonnen. Sie werden planmäßig bis Mitte Juni dauern. Während dieser Zeit könnte es Einschränkungen in der Nutzung des Pfarrgartens geben. Alle Gewerke werden aber versuchen, diese auf ein Minimum zu beschränken.
Wenn Sie Fragen oder Anregungen zu dem Projekt haben, wenden Sie sich gerne an Pastor Riedel oder die Mitglieder des Kirchengemeinderates oder kommen Sie zu einer Sitzung des Kirchengemeinderates.
Gez.
Ihr Kirchengemeinderat Greifswald-Eldena-Wieck